
- 渋谷区富ヶ谷1-51(以下未定)
- 12.04坪 4F
- 月額賃料:352,000円
富ヶ谷エリアの新築テナントビルの最上階小さめの物件で...
※図面と写真が現況と異なる場合は、現況を優先とします。
| 物件No. | k164 |
|---|---|
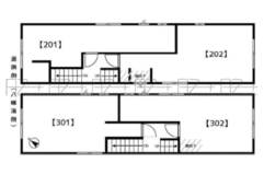
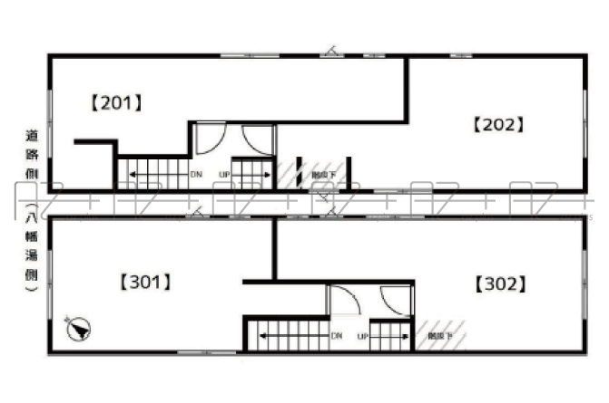
| 物件名称 | リオネビル 2F-201号室 |
| 所在地 | 渋谷区富ヶ谷1-3-14 |
| 最寄駅 | ■東京メトロ千代田線 「代々木公園」駅徒歩1分 ■小田急小田原線 「代々木八幡」駅徒歩1分 |
| 面積 | 26.50㎡(約8.01坪) |
| 月額賃料 | 税込385,000円(坪単価@約48,064円) 税別350,000円(坪単価@約43,695円) |
| 所在階 | 2F201号室 |
| 敷金 | 6ヶ月 |
| 礼金 | 2ヶ月 |
| 償却 | 解約時2ヶ月 |
| 再契約料 | 新賃料の1ヶ月 |
| 契約期間 | 定期借家契約2年 |
|---|---|
| 入居時期 | 即日入居可能 |
| 火災保険料 | 要加入:借主負担 |
| 保証会社 | 要加入:初回総賃料100%、月額保証料総賃料2%、年間更新料10,000円(滞納ない場合) |
| 構造・規模 | 鉄筋コンクリート造3階建 |
| 設備 | ■メールボックス ■50A |
| 竣工 | 1973年6月 |
| 備考 | ■引渡し:現況渡し ■エアコン室外機は屋上に設置可 ■解約時、貸主にリフォーム代の請求はできません ■解約予告:6ヶ月前 ■スケルトン返し ■1年未満の解約時、違約金1ヶ月 |
| 取引様態 | 媒介 |
| 仲介手数料 | 賃料の1ヶ月分(別途消費税) |
| 更新日 | 2025-12-03 |
代々木八幡駅、代々木公園駅徒歩1分
小さめの飲食店や美容室等を開きたい方におススメ!
銭湯の向いに建つテナントビルの1区画。
周辺は飲食店も多いエリア。
代々木八幡エリアで貸店舗をお探しなら!









富ヶ谷エリアの新築テナントビルの最上階小さめの物件で...









代々木公園駅、代々木八幡駅徒歩1分新築テナントビルの...









代々木公園駅、代々木八幡駅徒歩1分新築テナントビルの...









代々木八幡駅徒歩1分、代々木公園駅徒歩1分、代々木八...









代々木駅徒歩3分!代々木駅交差点から千代通り入口交差...
※図面と写真が現況と異なる場合は、現況を優先とします。