
- 世田谷区北沢2-23-2
- 19.47坪 2F
- 月額賃料:920,931円
下北沢駅南西口から徒歩1分!京王井の頭線からもアクセ...
※図面と写真が現況と異なる場合は、現況を優先とします。
| 物件No. | k175 |
|---|---|
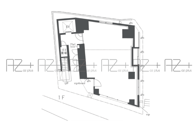
| 物件名称 | ポルテ下北沢 1F |
| 所在地 | 世田谷区北沢2-23-2 |
| 最寄駅 | ■京王井の頭線、小田急小田原線 「下北沢」駅徒歩1分 |
| 面積 | 73.21㎡(22.14坪) |
| 月額賃料 | 税込1,704,780円(坪単価@77,000円) 税別1,549,800円(坪単価@70,000円) |
| 所在階 | 1F |
| 敷金 | 賃料の6ヶ月分 |
| 償却 | 2ヶ月 |
| 再契約料 | 新賃料の1ヶ月分 |
| 契約期間 | 定期借家契約5年/応相談 |
| 入居時期 | 2025年10月以降 |
|---|---|
| 火災保険料 | 要加入 |
| 保証会社 | 要加入 |
| 構造・規模 | 鉄筋コンクリート造6階建 |
| 現況 | 空室(スケルトン) |
| 竣工 | 2025年9月末 |
| 備考 | ■内装設備費の補助にはデザインおよび設備の審査があります ■1F~2F 店舗等(重飲食も可) ■3F~4F 店舗等(軽飲食・物販等) ■解約予告:解約不可/応相談 ■スケルトン天井の想定床~天井までの高さ3.2-3.47m、階高3.6-3.7m、窓サッシ高2.75m |
| 取引様態 | 媒介 |
| 仲介手数料 | 賃料の1ヶ月分(別途消費税) |
| 更新日 | 2025-11-04 |
下北沢駅南西口から徒歩1分!
京王井の頭線からもアクセス可能。
南西口には飲食店やお洒落なカフェ、シェアラウンジがあり
ゆったりと過ごしたい方にオススメ。
少し入った場所に位置し、隠れ家要素有。
カフェやサービス店舗に最適!
内容により重飲食等もご相談。
人気の1フロア1テナント。
24時間営業可能。
下北沢エリアで物件をお探しの方、お問い合わせください!
| 物件No | 階数 | 面積 | 賃料(税込) | 業種 | 詳細 |
|---|---|---|---|---|---|
| k176 | 2F | 19.47坪 | 920,931円 | 閲覧 | |
| k177 | 3F | 16.88坪 | 705,584円 | 閲覧 | |
| k178 | 4F | 16.88坪 | 705,584円 | 閲覧 |









下北沢駅南西口から徒歩1分!京王井の頭線からもアクセ...








下北沢駅南西口から徒歩1分!京王井の頭線からもアクセ...








下北沢駅南西口から徒歩1分!京王井の頭線からもアクセ...









表参道駅徒歩3分。青山通り沿いから少し入った所にある...








下北沢駅徒歩3分商店街至近の1階路面店の紹介です。周...
※図面と写真が現況と異なる場合は、現況を優先とします。