
- 渋谷区神宮前1-8-10
- 52.27坪 6F
- 月額賃料:要相談
明治神宮前駅徒歩3分、原宿駅徒歩5分明治通り沿いに位...
※図面と写真が現況と異なる場合は、現況を優先とします。
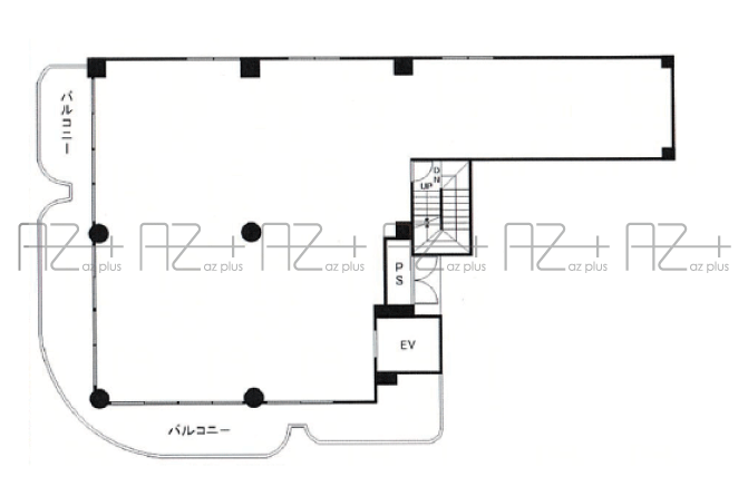
| 物件No. | k209 |
|---|---|
| 物件名称 | クーラビル 4F |
| 所在地 | 渋谷区神南1-17-5 |
| 最寄駅 | ■JR各線・東京メトロ銀座線・半蔵門線・副都心線 「渋谷」駅徒歩8分 ■JR山手線 「原宿」駅徒歩14分 |
| 面積 | 173.13㎡(約52.37坪) |
| 月額賃料 | 税込1,298,000円(坪単価@約24,785円) 税別1,180,000円(坪単価@約22,531円) |
| 所在階 | 4F |
| 敷金 | 賃料の6ヶ月分(不課税) |
| 償却 | 解約時、敷金の10%相当額 |
| 更新料 | 新賃料の1ヶ月分(税別) |
| 契約期間 | 普通借家契約3年間(以降3年毎更新) |
| 入居時期 | 相談 |
|---|---|
| 火災保険料 | 要加入 |
| 保証会社 | 要加入:ニッポンインシュア(契約時:総賃料の1ヶ月分、2年目以降:総賃料の10%/年) |
| 構造・規模 | 鉄筋コンクリート造 地下1階付5階建 |
| 現況 | エステ営業中 |
| 竣工 | 1988年9月 |
| 備考 | ■解約予告:6ヶ月前 ■スケルトン予定 ■歯医者、重飲食NG ■2026年2月28日が解約予定ですが、合意解約で前倒しで契約は可能 |
| 取引様態 | 専任 |
| 仲介手数料 | 賃料の1ヶ月分(別途消費税) |
| 更新日 | 2025-10-15 |
渋谷エリアのテナントビルのご紹介。
オシャレなショップが多く集まる神南エリア。
サロンや物販店舗におすすめの貸店舗です。
クリニックはご相談可能ですが、歯科は不可。
神南エリアで貸店舗をお探しなら!







明治神宮前駅徒歩3分、原宿駅徒歩5分明治通り沿いに位...







渋谷駅前のテナントビルのご紹介。人通りが多くバスロー...







渋谷駅前の貸店舗のご紹介。人通りの多い立地で駅からも...








神南エリアの新築貸店舗のご紹介。新築テナントビルの9...








神南エリアの新築テナントビルのご紹介。新築ビルの1区...
※図面と写真が現況と異なる場合は、現況を優先とします。