
- 渋谷区恵比寿南2-5-1
- 約95.46坪 1-5F
- 月額賃料:6,050,000円
恵比寿駅徒歩5分一棟貸しの隠れ家物件のご紹介です。駅...
※図面と写真が現況と異なる場合は、現況を優先とします。
| 物件No. | k215 |
|---|---|
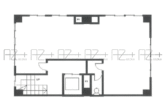
| 物件名称 | プラザ恵比寿南 2F |
| 所在地 | 渋谷区恵比寿南2-8-3 |
| 最寄駅 | ■JR各線、東京メトロ日比谷線 「恵比寿」駅徒歩5分 |
| 面積 | 約69.5㎡(約21.02坪) |
| 月額賃料 | 税込616,000円(坪単価@約29,305円) 税別560,000円(坪単価@約26,641円) |
| 月額管理費 | 税込44,000円(坪単価@約2,093円) 税別40,000円(坪単価@約1,902円) |
| 月額賃料+管理費 | 税込660,000円 税別600,000円 |
| 所在階 | 2F |
| 保証金 | 6ヶ月 |
| 礼金 | 1ヶ月 |
| 償却 | 保証金の30%及び消費税 |
|---|---|
| 契約期間 | 定期借家契約3年 |
| 火災保険料 | 要加入 |
| 保証会社 | 要加入:Casa(保証委託料:月額賃料合計の80%) |
| 構造・規模 | 鉄骨鉄筋コンクリート造7階建 |
| 現況 | 11月下旬空き予定 |
| 竣工 | 1971年6月 |
| 備考 | ■看板料:22,000円~(※初回契約時のみ) ■軽飲食相談可 ■再契約相談可 |
| 取引様態 | 媒介 |
| 仲介手数料 | 賃料の1ヶ月分(別途消費税) |
| 更新日 | 2025-10-29 |
恵比寿駅徒歩5分
お洒落な外観の物件の2階のご紹介です。
アトリエのような外観の物件です!
軽飲食相談可能!その他業種もご相談ください。
他フロアにはアパレルショップ、事務所、ピラティススタジオ等が入っています。
恵比寿エリアで物件をお探しの方はお問い合わせください。








恵比寿駅徒歩5分一棟貸しの隠れ家物件のご紹介です。駅...






恵比寿駅徒歩4分駒沢通りから入って少し進んだ場所にあ...









恵比寿駅徒歩5分幅広い業種がご相談可能な物件のご紹介...







恵比寿駅5分!デザイナーズ物件3階のご紹介です。恵比...








表参道駅徒歩4分青山通り付近の物件のご紹介です。全面...
※図面と写真が現況と異なる場合は、現況を優先とします。