
- 渋谷区神南1-10-6
- 約17.44坪 9F
- 月額賃料:682,000円
神南エリアの新築貸店舗のご紹介。新築テナントビルの9...
※図面と写真が現況と異なる場合は、現況を優先とします。
| 物件No. | k217 |
|---|---|
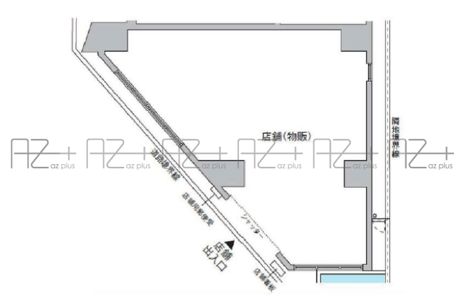
| 物件名称 | (仮称)広尾5丁目落合ビル 1F |
| 所在地 | 渋谷区広尾5-19-20 |
| 最寄駅 | ■東京メトロ日比谷線 「広尾」駅徒歩6分 ■JR各線、東京メトロ日比谷線 「恵比寿」駅徒歩12分 |
| 面積 | 41.48㎡(12.54坪) |
| 月額賃料 | 税込689,700円(坪単価@55,000円) 税別627,000円(坪単価@50,000円) |
| 所在階 | 1F |
| 保証金 | 10ヶ月 |
| 礼金 | 2.2ヶ月 |
| 償却 | 2ヶ月(別途消費税) |
| 再契約料 | 新賃料1ヶ月分(別途消費税) |
| 契約期間 | 定期借家契約5年 |
| 入居時期 | ご相談 |
|---|---|
| 火災保険料 | 要加入:指定 |
| 保証会社 | 要加入:指定 |
| 構造・規模 | 鉄筋コンクリート造 |
| 設備 | ■給排水あり ■電気:電灯・動力あり |
| 現況 | 建設中 |
| 竣工 | 2026年4月末竣工予定 |
| 備考 | ■中途解約不可 ■業種・業態応相談 ■引渡状態:スケルトン ■専用看板応相談 |
| 取引様態 | 媒介 |
| 仲介手数料 | 賃料の1ヶ月分(別途消費税) |
| 更新日 | 2025-10-28 |
広尾駅徒歩6分
明治通り沿いの新築物件のご紹介です。
広尾散歩通り至近で周辺には店舗も多数!
カフェ等の軽飲食におすすめ!
その他業種もご相談ください。
広尾エリアで物件をお探しの方はお問い合わせください。








神南エリアの新築貸店舗のご紹介。新築テナントビルの9...








神南エリアの新築貸店舗のご紹介。新築テナントビルの6...









渋谷駅徒歩6分桜丘町エリアの新築物件のご紹介です。周...








表参道駅徒歩4分青山通り付近の物件のご紹介です。全面...








白金高輪徒歩11分芝新宿王子線沿い1階路面店のご紹介...
※図面と写真が現況と異なる場合は、現況を優先とします。