
- 港区北青山2-9-9
- 19.72坪 2F
- 月額賃料:1,089,000円
東京メトロ銀座線「外苑前」駅より徒歩2分!スタジアム...
※図面と写真が現況と異なる場合は、現況を優先とします。
| 物件No. | k255 |
|---|---|
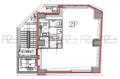
| 物件名称 | ARISTO南青山 2F |
| 所在地 | 港区南青山2-11-11 |
| 最寄駅 | ■東京メトロ銀座線 「外苑前」駅徒歩4分 ■東京メトロ銀座線・半蔵門線、都営大江戸線 「青山一丁目」駅徒歩6分 ■東京メトロ千代田線 「乃木坂」駅徒歩13分 |
| 面積 | 60.06㎡(18.16坪) |
| 月額賃料 | 税込519,376円(坪単価@28,600円) 税別472,160円(坪単価@26,000円) |
| 保証金 | 賃料の6ヶ月分 |
| 償却 | 賃料の2ヶ月分 |
| 更新料 | 新賃料1ヶ月分(税別) |
| 契約期間 | 普通借家契約3年 |
| 入居時期 | 2026年4月28日~ |
| 火災保険料 | 要加入(指定なし) |
|---|---|
| 保証会社 | 要加入(貸主指定) |
| 天井高 | 3.35m |
| 構造・規模 | 鉄筋コンクリート造7階建 |
| 設備 | ■男女別トイレ |
| 竣工 | 2019年2月 |
| 備考 | ■解約予告:6ヶ月前 ■短期解約違約金あり ■東京都福祉のまちづくり条例等、各条例・規則・法令遵守 |
| 取引様態 | 媒介 |
| 仲介手数料 | 賃料の1ヶ月分(別途消費税) |
| 更新日 | 2025-12-19 |
外苑前駅徒歩4分
青山通り至近のオフィス物件のご紹介です。
天井高3.35mで広々とした空間!
青山通り、いちょう並木至近!
青山エリアでオフィス物件をお探しの方はお問い合わせください。









東京メトロ銀座線「外苑前」駅より徒歩2分!スタジアム...



表参道駅徒歩5分青山通り至近の物件のご紹介です。お洒...



表参道駅徒歩9分六本木通り至近の物件のご紹介です。外...


外苑前駅徒歩5分、表参道駅徒歩7分長者丸通り沿いの物...


外苑前駅徒歩5分、表参道駅徒歩7分長者丸通り沿いの物...
※図面と写真が現況と異なる場合は、現況を優先とします。