
- 港区北青山2-9-9
- 19.72坪 2F
- 月額賃料:1,089,000円
東京メトロ銀座線「外苑前」駅より徒歩2分!スタジアム...
※図面と写真が現況と異なる場合は、現況を優先とします。
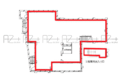
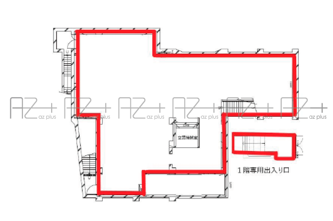
| 物件No. | k259 |
|---|---|
| 物件名称 | KDX南青山ビル B1F |
| 所在地 | 港区南青山5-13-3 |
| 最寄駅 | ■東京メトロ半蔵門線・銀座線・千代田線 「表参道」駅徒歩6分 |
| 面積 | 232.35㎡(68.48坪) |
| 月額賃料 | 税込要相談 税別要相談 |
| 月額共益費 | 税込要相談 税別要相談 |
| 所在階 | B1F |
| 敷金 | 相談 |
| 契約期間 | 定期借家契約 |
| 入居時期 | 即日入居可能 |
|---|---|
| 天井高 | 4.5m |
| 構造・規模 | 鉄骨鉄筋コンクリート造 地下1階付9階建 |
| 設備 | ■エレベーター1基 ■機械警備 ■光ケーブル引込可 ■電気容量:約45VA/㎡ |
| 竣工 | 1988年11月 |
| 備考 | ■エントランス:専用入り口のため、24h可 ■水道光熱費・清掃費等は、別途ご負担頂きます ■1フロア1テナント ■ガス引き込み有り ■飲食・事務所・サービス店舗可 ■スケルトン渡し |
| 取引様態 | 媒介 |
| 仲介手数料 | 賃料の1ヶ月分(別途消費税) |
| 更新日 | 2026-01-15 |
表参道駅徒歩6分
骨董通り沿いの物件のご紹介です。
地下1階の物件となり、飲食可能です!
約70坪の広さの、スケルトン物件!
1階部分はセブンイレブンです!
南青山エリアで物件をお探しの方はお問い合わせください。









東京メトロ銀座線「外苑前」駅より徒歩2分!スタジアム...








外苑前駅徒歩5分、外苑西通りの1本裏道にあるガラス張...








外苑前駅徒歩5分、外苑西通りの1本裏道にあるガラス張...









表参道駅徒歩2分、青山通り沿いの角地にある建物の地下...









麻布十番の貸店舗のご紹介。美容皮膚科の内装有。(造作...
※図面と写真が現況と異なる場合は、現況を優先とします。