
- 渋谷区渋谷1-1-16
- 26.53坪 5F
- 月額賃料:要相談
渋谷駅徒歩7分、表参道駅徒歩7分、渋谷と表参道の中間...
※図面と写真が現況と異なる場合は、現況を優先とします。
| 物件No. | k269 |
|---|---|
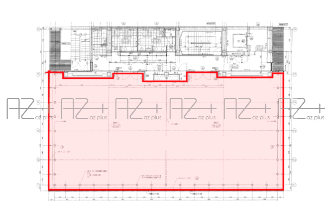
| 物件名称 | フィールド北参道 4F |
| 所在地 | 渋谷区千駄ヶ谷4-4-4 |
| 最寄駅 | ■東京メトロ副都心線 「北参道」駅徒歩3分 ■JR各線、都営大江戸線 「代々木」駅徒歩7分 |
| 面積 | 333.59㎡(100.91坪) |
| 月額賃料 | 税込要相談 税別要相談 |
| 所在階 | 4F |
| 敷金 | 賃料の12ヶ月分 |
| 契約期間 | 定期借家契約3年 |
| 入居時期 | 相談 |
|---|---|
| 構造・規模 | 鉄骨造6階建 |
| 設備 | ■エレベーター ■個別空調 ■機械警備 |
| 竣工 | 2008年10月 |
| 備考 | ■水道光熱費、清掃費等は別途ご負担いただきます ■平日:8:00~20:00/土日祝:閉館 |
| 取引様態 | 媒介 |
| 仲介手数料 | 賃料の1ヶ月分(別途消費税) |
| 更新日 | 2026-01-23 |
北参道駅徒歩3分、代々木駅徒歩7分
大きな窓面が特徴のオフィス物件のご紹介です。
複数路線が利用可能な好立地!
レイアウトもしやすい柱が無い約100坪の整形空間!
北参道エリアでオフィス物件をお探しの方はお問い合わせください。



渋谷駅徒歩7分、表参道駅徒歩7分、渋谷と表参道の中間...


表参道駅徒歩2分青山通り沿いの物件のご紹介です。南青...


恵比寿駅徒歩5分駒沢通り至近の物件のご紹介です。隠れ...








恵比寿駅徒歩5分一棟貸しの隠れ家物件のご紹介です。駅...


外苑前駅徒歩3分外苑西通り沿いの物件のご紹介です。丸...
※図面と写真が現況と異なる場合は、現況を優先とします。