
- 港区南青山2-4-11
- 34.44坪 B1-1F
- 月額賃料:1,060,752円
青山一丁目駅徒歩3分閑静なエリアの物件のご紹介です。...
※図面と写真が現況と異なる場合は、現況を優先とします。
| 物件No. | k320 |
|---|---|
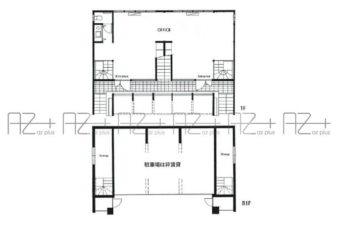
| 物件名称 | ガレット南青山 B1-1F |
| 所在地 | 港区南青山1-5-12 |
| 最寄駅 | ■東京メトロ銀座線・半蔵門線、都営大江戸線 「青山一丁目」駅徒歩5分 ■東京メトロ千代田線 「乃木坂」駅徒歩7分 |
| 面積 | 70.38㎡(21.28坪) |
| 月額賃料 | 税込400,000円(坪単価@約18,796円) 税別363,636円(坪単価@約17,088円) |
| 所在階 | B1-1F |
| 敷金 | 6ヶ月 |
| 更新料 | 新賃料の1ヶ月分 |
| 契約期間 | 2年 |
| 火災保険料 | 要加入 |
|---|---|
| 保証会社 | 要加入:フォーシーズ 収入代行手数料月額330円(税込) |
| 構造・規模 | 木造・一部鉄筋コンクリート造 地下1階付3階建 |
| 設備 | ■ミニキッチン ■エアコン |
| 竣工 | 1988年4月 |
| 備考 | ■解約通告:2ヶ月前 ■仲介手数料:賃料の1.10ヶ月分 |
| 取引様態 | 媒介 |
| 仲介手数料 | 賃料の1ヶ月分(別途消費税) |
| 更新日 | 2026-01-08 |
青山1丁目駅徒歩5分
隠れ家立地の貸事務所のご紹介です。
環状三号線至近!周辺には青山公園や青葉公園があり、緑に囲まれています!
落ち着いた雰囲気のエリアでオフィスをお探しの方に!
詳細はAZplusへお問い合わせください。


青山一丁目駅徒歩3分閑静なエリアの物件のご紹介です。...


外苑前駅徒歩5分、表参道駅徒歩7分長者丸通り沿いの物...


外苑前駅徒歩4分青山通り至近のオフィス物件のご紹介で...








外苑前駅徒歩6分、青山一丁目駅徒歩6分、南青山の閑静...






表参道駅徒歩2分駅近の隠れ家立地の物件のご紹介です。...
※図面と写真が現況と異なる場合は、現況を優先とします。