
- 渋谷区富ヶ谷1-51(以下未定)
- 14.18坪 1F
- 月額賃料:623,700円
代々木公園駅、代々木八幡駅徒歩1分新築テナントビルの...
※図面と写真が現況と異なる場合は、現況を優先とします。
| 物件No. | k376 |
|---|---|
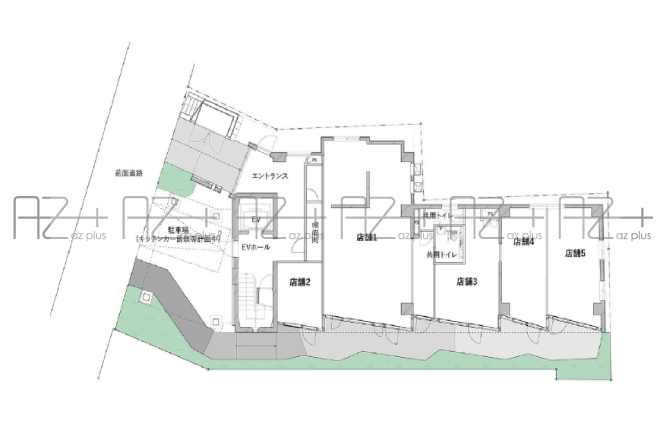
| 物件名称 | Bre.S SHIBUYA 1F-B号室(店舗1) |
| 所在地 | 渋谷区渋谷3-25-7 |
| 最寄駅 | ■JR各線、東京メトロ銀座線・半蔵門線・副都心線、東急東横線・田園都市線、京王井の頭線 「渋谷」駅徒歩3分 |
| 面積 | 54.65㎡(16.53坪) |
| 月額賃料 | 税込583,000円(坪単価@約35,269円) 税別530,000円(坪単価@約32,062円) |
| 月額共益費 | 税込55,000円(坪単価@約3,327円) 税別50,000円(坪単価@約3,024円) |
| 月額賃料+共益費 | 税込638,000円 税別580,000円 |
| 所在階 | 1FB号室(店舗1) |
| 敷金 | 4ヶ月~ |
| 礼金 | 1ヶ月 |
| 再契約料 | 新賃料の1ヶ月分 |
| 契約期間 | 定期借家契約 |
|---|---|
| 入居時期 | 相談 |
| 火災保険料 | 要加入 |
| 保証会社 | 要加入:初回保証料/月支払い総額の100%、更新料:年額10,000円~ |
| 構造・規模 | 鉄筋コンクリート・鉄骨造4階建 |
| 設備 | ■電気:電灯75A、動力100A ■水道:給水管25A、排水管50または100A ■ガス:50A(引込み可能) ■共用部:トイレ(男女共用、共用部) |
| 竣工 | 2001年、2019年 |
| 備考 | ■契約期間:物販及びサービス店舗の場合は4年間、飲食及び美容室の場合は6年間/再契約:相談 ■専有部の電気料金及び共用部の水光熱費は管理会社からの請求によりお支払いいただきます(専有部にて水道を使用する場合は水道局との直接契約となります) ■貸主指定のゴミ処理事業者と入居者様にて直接契約してゴミ処理をしていただきます(建物1階にゴミ置場あり) |
| 取引様態 | 媒介 |
| 仲介手数料 | 賃料の1ヶ月分(別途消費税) |
| 更新日 | 2026-01-27 |
渋谷駅徒歩3分
渋谷リバーストリートが目の前の物件のご紹介です。
道路側に店舗部分がなく、隠れ家的店舗としても演出可能!
周辺には飲食店も多く点在しています。
明治通り、八幡通り、鎌倉街道至近!
詳細についてはAZplusにお問い合わせください。









代々木公園駅、代々木八幡駅徒歩1分新築テナントビルの...









渋谷駅徒歩6分桜丘町エリアの新築物件のご紹介です。周...









高田馬場駅徒歩5分、早稲田通り沿いにあるデザイナーズ...









富ヶ谷エリアの新築テナントビルの最上階小さめの物件で...








下北沢駅徒歩3分商店街至近の1階路面店の紹介です。周...
※図面と写真が現況と異なる場合は、現況を優先とします。