
- 渋谷区神南1-15(以下未定)
- 17.89坪 6F
- 月額賃料:979,000円
渋谷駅徒歩7分、公園通りの角地に建築中の新築店舗ビル...
※図面と写真が現況と異なる場合は、現況を優先とします。
| 物件No. | k396 |
|---|---|
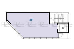
| 物件名称 | ジョルディビル 3F |
| 所在地 | 渋谷区神南1-6-14 |
| 最寄駅 | ■JR山手線 「原宿」駅徒歩8分 ■JR各線、東京メトロ銀座線・半蔵門線・副都心線、東急東横線・田園都市線、京王井の頭線 「渋谷」駅徒歩7分 |
| 面積 | 41.66㎡(12.60坪) |
| 月額賃料 | 税込415,800円(坪単価@33,000円) 税別378,000円(坪単価@30,000円) |
| 月額共益費 | 税込41,580円(坪単価@3,300円) 税別37,800円(坪単価@3,000円) |
| 月額賃料+共益費 | 税込457,380円 税別415,800円 |
| 所在階 | 3F |
| 敷金 | 6ヶ月 |
| 礼金 | 2ヶ月 |
| 更新料 | 新賃料の1ヶ月 |
|---|---|
| 契約期間 | 2年 |
| 入居時期 | 3月中旬 |
| 保証会社 | 要加入:4C’s PLUS 保証(賃料 共益費1ヶ月分) |
| 構造・規模 | 鉄筋コンクリート造 地下1階付8階建 |
| 設備 | ■エレベーター |
| 竣工 | 2007年10月 |
| 備考 | ■飲食不可 |
| 取引様態 | 媒介 |
| 仲介手数料 | 賃料の1ヶ月分(別途消費税) |
| 更新日 | 2026-02-12 |
神南エリアのオシャレビルの3階、ワンフロア。
角地に建つオシャレなビルで物販店舗やショールーム等に◎
神南エリアで貸店舗をお探しなら!








渋谷駅徒歩7分、公園通りの角地に建築中の新築店舗ビル...








渋谷駅徒歩7分、公園通りの角地に建築中の新築店舗ビル...








渋谷駅徒歩7分、公園通りの角地に建築中の新築店舗ビル...







渋谷エリアの新築テナントビルのご紹介。サロン等におス...









渋谷エリアの新築テナントビルのご紹介。8階の最上階の...
※図面と写真が現況と異なる場合は、現況を優先とします。