Category:物件紹介 , 【店舗物件】表参道・原宿・神宮前
【店舗紹介】原宿!デザイナーズビル 広めのバルコニー有
こんにちは♪ AZplusスタッフです。 今回は、原宿、神宮前エリアにある店舗のご紹介です。 神宮前COURT B 2F 【所在地】 渋谷区神宮前4 【アクセス】 ■JR山手線 「原宿」駅徒歩7分 ■東京メト…
こんにちは♪ AZplusスタッフです。
今回は、奥渋エリアにある店舗事務所のご紹介です。

【所在地】
渋谷区宇田川町37-15
【アクセス】
■JR各線
「渋谷」駅徒歩9分
■東京メトロ半蔵門線・銀座線・副都心線、東急東横線・田園都市線、京王井の頭線
「渋谷」駅徒歩7分
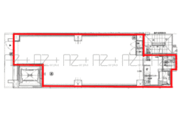
【面積】
65.22㎡(19.73坪)




平面図

渋谷エリアの築浅テナントビルの3階ワンフロア。
1フロア1テナントの構成で使い勝手も◎
事務所利用大歓迎!サービス店舗もご相談!
人気の奥渋エリアのオシャレなビルにオフィスや店舗を構えたい方にオススメです!
———————————————————-
AZplus(アズプラス)はこだわりの店舗物件情報を掲載中です!
AZplus運営会社:株式会社アドバンス・シティ・プランニング
お問合せフォームはこちら↓
https://azplus.jp/request/
お電話でのお問合せはこちら↓
TEL :03-5413-8778
店舗物件や不動産に関するご質問でもお気軽にご連絡下さい。
AZplusスタッフ
Category:物件紹介 , 【店舗物件】表参道・原宿・神宮前
こんにちは♪ AZplusスタッフです。 今回は、原宿、神宮前エリアにある店舗のご紹介です。 神宮前COURT B 2F 【所在地】 渋谷区神宮前4 【アクセス】 ■JR山手線 「原宿」駅徒歩7分 ■東京メト…
Category:物件紹介 , 【店舗物件】表参道・原宿・神宮前
こんにちは♪ AZplusスタッフです。 今回は、神宮前エリアにある店舗のご紹介です。 秀幸ビル B1F 【所在地】 渋谷区神宮前5 【アクセス】 ■JR各線、東京メトロ銀座線・半蔵門線・副都心線、東急東横線…
Category:物件紹介 , 【店舗物件】表参道・原宿・神宮前
こんにちは♪ AZplusスタッフです。 今回は、神宮前エリアにある店舗・事務所のご紹介です。 吉田ビル 2F-203号室 【所在地】 渋谷区神宮前4 【アクセス】 ■東京メトロ副都心線・千代田線 「明治神宮…