Category:物件紹介 , 【店舗物件】六本木・西麻布
【店舗・事務所紹介】新築!六本木駅徒歩3分 飲食店相談可!天井高有
こんにちは♪ AZplusスタッフです。 今回は、六本木エリアにある店舗・事務所のご紹介です。 FUSION Roppongi Terrace B1F 【所在地】 港区六本木7 【アクセス】 ■東京メトロ日比…
こんにちは♪ AZplusスタッフです。
今回は、表参道エリアにある店舗のご紹介です。

【所在地】
渋谷区神宮前3
【アクセス】
■東京メトロ銀座線・半蔵門線・千代田線
「表参道」駅徒歩7分
■東京メトロ銀座線
「外苑前」駅徒歩8分
■都営大江戸線
「国立競技場」駅徒歩15分
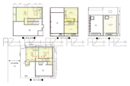
【面積】
133.64㎡(40.43坪)


平面図

表参道駅徒歩7分
まい泉通り至近の隠れ家物件のご紹介です。
新築!戸建て風物件となります!駐車場、専用の屋上テラス付き!
業種はご相談ください!
表参道エリアで物件をお探しの方はお問い合わせください。
———————————————————-
AZplus(アズプラス)はこだわりの店舗物件情報を掲載中です!
AZplus運営会社:株式会社アドバンス・シティ・プランニング
お問合せフォームはこちら↓
https://azplus.jp/request/
お電話でのお問合せはこちら↓
TEL :03-5413-8778
店舗物件や不動産に関するご質問でもお気軽にご連絡下さい。
AZplusスタッフ
Category:物件紹介 , 【店舗物件】六本木・西麻布
こんにちは♪ AZplusスタッフです。 今回は、六本木エリアにある店舗・事務所のご紹介です。 FUSION Roppongi Terrace B1F 【所在地】 港区六本木7 【アクセス】 ■東京メトロ日比…
Category:物件紹介 , 【店舗物件】恵比寿・代官山エリア
こんにちは♪ AZplusスタッフです。 今回は、代官山エリアにある店舗・事務所のご紹介です。 代官山店舗・事務所ビル B1F 【所在地】 渋谷区恵比寿西1 【アクセス】 ■東急東横線 「代官山」駅 ■東急東…
Category:物件紹介 , 【店舗物件】恵比寿・代官山エリア
こんにちは♪ AZplusスタッフです。 今回は、恵比寿エリアにある店舗・事務所のご紹介です。 コルティス恵比寿 2F 【所在地】 渋谷区恵比寿西1 【アクセス】 ■JR各線、東京メトロ日比谷線 「恵比寿」駅…