Category:物件紹介 , 【店舗物件】表参道・原宿・神宮前
【店舗紹介】神宮前のオシャレ物件 サロンや事務所に◎
こんにちは♪ AZplusスタッフです。 今回は、神宮前エリアにある店舗のご紹介です。 DOLCE 2-4F 【所在地】 渋谷区神宮前3 【アクセス】 ■JR山手線 「原宿」駅徒歩10分 ■東京メトロ千代田線…
こんにちは♪ AZplusスタッフです。
今回は、恵比寿エリアにある事務所のご紹介です。

【所在地】
渋谷区恵比寿南1
【アクセス】
■JR各線・東京メトロ日比谷線
「恵比寿」駅徒歩5分
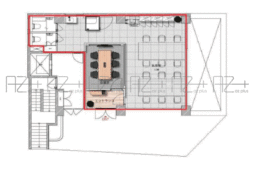
【面積】
75.27㎡(22.76坪)

平面図

恵比寿駅徒歩5分
角地で1階の物件のご紹介です。
テレカンブースや会議室等の一部の什器付き!
初期費用を抑えたい方にもおすすめです!
恵比寿エリアで物件をお探しの方はお問い合わせください。
———————————————————-
AZplus(アズプラス)はこだわりの店舗物件情報を掲載中です!
AZplus運営会社:株式会社アドバンス・シティ・プランニング
お問合せフォームはこちら↓
https://azplus.jp/request/
お電話でのお問合せはこちら↓
TEL :03-5413-8778
店舗物件や不動産に関するご質問でもお気軽にご連絡下さい。
AZplusスタッフ
Category:物件紹介 , 【店舗物件】表参道・原宿・神宮前
こんにちは♪ AZplusスタッフです。 今回は、神宮前エリアにある店舗のご紹介です。 DOLCE 2-4F 【所在地】 渋谷区神宮前3 【アクセス】 ■JR山手線 「原宿」駅徒歩10分 ■東京メトロ千代田線…
Category:物件紹介
こんにちは♪ AZplusスタッフです。 今回は、奥渋エリアにある店舗・事務所のご紹介です。 h+富ヶ谷 B1F 【所在地】 渋谷区富ヶ谷1 【アクセス】 ■東京メトロ千代田線 「代々木公園」駅徒歩4分 ■小…
Category:物件紹介 , 【店舗物件】表参道・青山・外苑前 , 【店舗物件】表参道・原宿・神宮前
こんにちは♪ AZplusスタッフです。 今回は、神宮前エリアにある店舗のご紹介です。 神宮前五丁目PJ 1F 【所在地】 渋谷区神宮前5 【アクセス】 ■東京メトロ千代田線・副都心線 「明治神宮前」駅徒歩6…