
24時間利用〇軽飲食可 パティオ十番正面6階!
- 麻布十番ミレニアムタワー 6F-601号室
- 港区麻布十番2-8-8
麻布十番徒歩3分パティオ十番正面の物件のご紹介です。角地の6階!軽飲食可能!その他の業種もご相談ください。麻布十番駅エリアで物件をお探しの方はお問い合わせください。
| 物件No | 階数 | 面積 | 賃料(税込) | 業種 | 別フロア |
|---|---|---|---|---|---|
| k169 | 6F601号室 | 13.98坪 | 461,340円 | なし |
こんにちは♪ AZplusスタッフです。
今回は、麻布十番エリアにある店舗・事務所のご紹介です。

【所在地】
港区麻布十番2
【アクセス】
■東京メトロ南北線、都営大江戸線
「麻布十番」駅徒歩3分
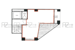
【面積】
46.20㎡(13.98坪)

平面図

麻布十番徒歩3分
パティオ十番正面の物件のご紹介です。
角地の6階!軽飲食可能!
その他の業種もご相談ください。
麻布十番駅エリアで物件をお探しの方はお問い合わせください。
———————————————————-
AZplus(アズプラス)はこだわりの店舗物件情報を掲載中です!
AZplus運営会社:株式会社アドバンス・シティ・プランニング
お問合せフォームはこちら↓
https://azplus.jp/request/
お電話でのお問合せはこちら↓
TEL :03-5413-8778
店舗物件や不動産に関するご質問でもお気軽にご連絡下さい。
AZplusスタッフ

麻布十番徒歩3分パティオ十番正面の物件のご紹介です。角地の6階!軽飲食可能!その他の業種もご相談ください。麻布十番駅エリアで物件をお探しの方はお問い合わせください。
| 物件No | 階数 | 面積 | 賃料(税込) | 業種 | 別フロア |
|---|---|---|---|---|---|
| k169 | 6F601号室 | 13.98坪 | 461,340円 | なし |
Category:物件紹介 , 【店舗物件】渋谷駅周辺
こんにちは♪ AZplusスタッフです。 今回は、神南エリアにある店舗・事務所のご紹介です。 ジョルディビル 3F 【所在地】 渋谷区神南1 【アクセス】 ■JR山手線 「原宿」駅徒歩8分 ■J…
Category:物件紹介 , 【店舗物件】麻布十番エリア
こんにちは♪ AZplusスタッフです。 今回は、麻布十番エリアにある店舗・事務所のご紹介です。 NS麻布十番ビル 11F 【所在地】 港区麻布十番3 【アクセス】 ■東京メトロ南北線 「麻布十番」駅徒歩4分…
Category:物件紹介
こんにちは♪ AZplusスタッフです。 今回は、品川エリアにある事務所のご紹介です。 工芸の空間 長者丸ハウス 1-2F 【所在地】 品川区上大崎2 【アクセス】 ■JR山手線、東京メトロ南北線 「目黒」駅…