Category:物件紹介 , 【店舗物件】表参道・青山・外苑前
【店舗・事務所紹介】外苑前駅徒歩2分!築浅 スタジアム通り沿い!
こんにちは♪ AZplusスタッフです。 今回は、外苑前エリアにある店舗・事務所のご紹介です。 P’s GAIENMAE 7F 【所在地】 港区北青山2 【アクセス】 ■東京メトロ銀座線 「外苑前」駅徒歩2分…
こんにちは♪ AZplusスタッフです。
今回は、渋谷エリアにある店舗・事務所のご紹介です。

【所在地】
渋谷区道玄坂1
【アクセス】
■JR各線、東京メトロ銀座線・半蔵門線・副都心線、東急東横線・田園都市線、京王井の頭線
「渋谷」駅徒歩7分
■京王井の頭線
「神泉」駅徒歩4分
【面積】
77.28㎡(23.37坪)


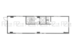
平面図

渋谷駅徒歩7分
道玄坂沿いの物件のご紹介です。
現況での引き渡しとなり、
ネイルサロンの造作が一部あります!
重飲食も相談可能です!
他フロアには焼き肉、バー、鍼灸院、事務所が入っています。
渋谷エリアで物件をお探しの方はお問い合わせください。
———————————————————-
AZplus(アズプラス)はこだわりの店舗物件情報を掲載中です!
AZplus運営会社:株式会社アドバンス・シティ・プランニング
お問合せフォームはこちら↓
https://azplus.jp/request/
お電話でのお問合せはこちら↓
TEL :03-5413-8778
店舗物件や不動産に関するご質問でもお気軽にご連絡下さい。
AZplusスタッフ
Category:物件紹介 , 【店舗物件】表参道・青山・外苑前
こんにちは♪ AZplusスタッフです。 今回は、外苑前エリアにある店舗・事務所のご紹介です。 P’s GAIENMAE 7F 【所在地】 港区北青山2 【アクセス】 ■東京メトロ銀座線 「外苑前」駅徒歩2分…
Category:物件紹介 , 【店舗物件】表参道・青山・外苑前
こんにちは♪ AZplusスタッフです。 今回は、表参道エリアにある店舗・事務所のご紹介です。 F・S南青山 3F 【所在地】 港区南青山3 【アクセス】 ■東京メトロ銀座線・半蔵門線・千代田線 「表参道」駅…
Category:物件紹介 , 【店舗物件】麻布十番エリア
こんにちは♪ AZplusスタッフです。 今回は、麻布十番エリアにある店舗・事務所のご紹介です。 麻布十番ミレニアムタワー 3F-301号室 【所在地】 港区麻布十番2 【アクセス】 ■東京メトロ南北線、都営…