
中目黒の新築貸店舗 新築ビルの2階!
- 中目黒今井ビル 2F
- 目黒区上目黒2-16
中目黒エリアの新築貸店舗2階のワンフロア!サロンやスクールにおススメです!
| 物件No | 階数 | 面積 | 賃料(税込) | 業種 | 別フロア |
|---|---|---|---|---|---|
| k190 | 2F | 15.98坪 | 539,000円 | あり |
こんにちは♪ AZplusスタッフです。
今回は、中目黒エリアにある店舗・事務所のご紹介です。

【所在地】
目黒区上目黒2
【アクセス】
■東京メトロ日比谷線、東急東横線
「中目黒」駅徒歩3分
【面積】
52.82㎡(15.98坪)


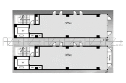
平面図

中目黒エリアの新築貸店舗
2階のワンフロア!
サロンやスクールにおススメです!
———————————————————-
AZplus(アズプラス)はこだわりの店舗物件情報を掲載中です!
AZplus運営会社:株式会社アドバンス・シティ・プランニング
お問合せフォームはこちら↓
https://azplus.jp/request/
お電話でのお問合せはこちら↓
TEL :03-5413-8778
店舗物件や不動産に関するご質問でもお気軽にご連絡下さい。
AZplusスタッフ

中目黒エリアの新築貸店舗2階のワンフロア!サロンやスクールにおススメです!
| 物件No | 階数 | 面積 | 賃料(税込) | 業種 | 別フロア |
|---|---|---|---|---|---|
| k190 | 2F | 15.98坪 | 539,000円 | あり |
Category:物件紹介 , 【店舗物件】渋谷駅周辺
こんにちは♪ AZplusスタッフです。 今回は、神南エリアにある店舗・事務所のご紹介です。 ジョルディビル 3F 【所在地】 渋谷区神南1 【アクセス】 ■JR山手線 「原宿」駅徒歩8分 ■J…
Category:物件紹介 , 【店舗物件】麻布十番エリア
こんにちは♪ AZplusスタッフです。 今回は、麻布十番エリアにある店舗・事務所のご紹介です。 NS麻布十番ビル 11F 【所在地】 港区麻布十番3 【アクセス】 ■東京メトロ南北線 「麻布十番」駅徒歩4分…
Category:物件紹介
こんにちは♪ AZplusスタッフです。 今回は、品川エリアにある事務所のご紹介です。 工芸の空間 長者丸ハウス 1-2F 【所在地】 品川区上大崎2 【アクセス】 ■JR山手線、東京メトロ南北線 「目黒」駅…