
外苑前駅徒歩1分! 業種は要相談!1階!
- ヒロビル 1F
- 港区南青山2-24-10
外苑前駅徒歩1分青山通り至近の物件のご紹介です。1階路面店となります。業種はご相談ください!外苑前エリアで物件をお探しの方はお問い合わせください。
| 物件No | 階数 | 面積 | 賃料(税込) | 業種 | 別フロア |
|---|---|---|---|---|---|
| k219 | 1F | 31.45坪 | 858,000円 | なし |
こんにちは♪ AZplusスタッフです。
今回は、外苑前エリアにある店舗・事務所のご紹介です。

【所在地】
港区南青山2
【アクセス】
■東京メトロ銀座線
「外苑前」駅徒歩1分
■東京メトロ半蔵門線・銀座線、都営大江戸線
「青山一丁目」駅徒歩9分
■東京メトロ千代田線・銀座線・半蔵門線
「表参道」駅徒歩10分
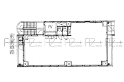
【面積】
103.96㎡(31.45坪)



平面図

外苑前駅徒歩1分
青山通り至近の物件のご紹介です。
1階路面店となります。
業種はご相談ください!
外苑前エリアで物件をお探しの方はお問い合わせください。
———————————————————-
AZplus(アズプラス)はこだわりの店舗物件情報を掲載中です!
AZplus運営会社:株式会社アドバンス・シティ・プランニング
お問合せフォームはこちら↓
https://azplus.jp/request/
お電話でのお問合せはこちら↓
TEL :03-5413-8778
店舗物件や不動産に関するご質問でもお気軽にご連絡下さい。
AZplusスタッフ

外苑前駅徒歩1分青山通り至近の物件のご紹介です。1階路面店となります。業種はご相談ください!外苑前エリアで物件をお探しの方はお問い合わせください。
| 物件No | 階数 | 面積 | 賃料(税込) | 業種 | 別フロア |
|---|---|---|---|---|---|
| k219 | 1F | 31.45坪 | 858,000円 | なし |
Category:物件紹介 , 【店舗物件】恵比寿・代官山エリア
こんにちは♪ AZplusスタッフです。 今回は、代官山エリアにある店舗・事務所のご紹介です。 SOPHIAS代官山 B1F-A号室 【所在地】 渋谷区恵比寿西2 【アクセス】 ■東急東横線 「代官山」駅徒歩…
Category:物件紹介 , 【店舗物件】恵比寿・代官山エリア
こんにちは♪ AZplusスタッフです。 今回は、恵比寿エリアにある店舗・事務所のご紹介です。 プラザ恵比寿南 2F 【所在地】 渋谷区恵比寿南2 【アクセス】 ■JR各線、東京メトロ日比谷線 「恵比寿」駅徒…
Category:物件紹介 , 【店舗物件】広尾エリア
こんにちは♪ AZplusスタッフです。 今回は、広尾エリアにある店舗のご紹介です。 (仮称)広尾5丁目落合ビル 1F 【所在地】 渋谷区広尾5 【アクセス】 ■東京メトロ日比谷線 「広尾」駅徒歩6分 ■JR…