
人気の恵比寿エリア! パーソナルジム居抜き!
- ACN恵比寿スクエア 3F
- 渋谷区東3-17-14
恵比寿駅徒歩4分駒沢通りから入って少し進んだ場所にある物件のご紹介です。黒を基調としたオシャレな外観のビルとなります!1階が半地下駐車場の為、3階部分の紹介ですが、実質2階です!現況はパーソナルジムとなり...
| 物件No | 階数 | 面積 | 賃料(税込) | 業種 | 別フロア |
|---|---|---|---|---|---|
| k223 | 3F | 20.18坪 | 715,000円 | なし |
こんにちは♪ AZplusスタッフです。
今回は、恵比寿エリアにある店舗・事務所のご紹介です。

【所在地】
渋谷区東3
【アクセス】
■JR各線・東京メトロ日比谷線
「恵比寿」駅徒歩4分
■東急東横線
「代官山」駅徒歩10分
【面積】
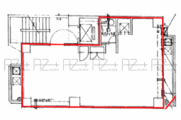
66.74㎡(20.18坪)


平面図

恵比寿駅徒歩4分
駒沢通りから入って少し進んだ場所にある物件のご紹介です。
黒を基調としたオシャレな外観のビルとなります!
1階が半地下駐車場の為、3階部分の紹介ですが、実質2階です!
現況はパーソナルジムとなり、居抜きでの引き渡しです。
スケルトン渡しも可能!業種はご相談ください。
他フロアにはバー、美容院、アジア料理店、お寿司屋等が入っています。
詳細はAzplusへお問い合わせください。
———————————————————-
AZplus(アズプラス)はこだわりの店舗物件情報を掲載中です!
AZplus運営会社:株式会社アドバンス・シティ・プランニング
お問合せフォームはこちら↓
https://azplus.jp/request/
お電話でのお問合せはこちら↓
TEL :03-5413-8778
店舗物件や不動産に関するご質問でもお気軽にご連絡下さい。
AZplusスタッフ
Category:物件紹介 , 【店舗物件】表参道・原宿・神宮前
こんにちは♪ AZplusスタッフです。 今回は、表参道エリアにある店舗のご紹介です。 ティアラビル B1F 【所在地】 渋谷区神宮前4 【アクセス】 ■東京メトロ銀座線・半蔵門線・千代田線 「表参道」駅徒歩…
Category:物件紹介
こんにちは♪ AZplusスタッフです。 今回は、学芸大学エリアにある店舗のご紹介です。 S・M石井ビル 1F 【所在地】 目黒区鷹番3 【アクセス】 ■東急東横線 「学芸大学」駅徒歩1分 ■東急東横線 「祐…
Category:物件紹介 , 【店舗物件】表参道・青山・外苑前
こんにちは♪ AZplusスタッフです。 今回は、青山エリアにある事務所のご紹介です。 ARISTO南青山 2F 【所在地】 港区南青山2 【アクセス】 ■東京メトロ銀座線 「外苑前」駅徒歩4分…