Category:物件紹介 , 【店舗物件】六本木・西麻布
【店舗・事務所紹介】西麻布!屋上テラス付! 飲食可!3階貸店舗!
こんにちは♪ AZplusスタッフです。 今回は、西麻布エリアにある店舗・事務所のご紹介です。 第二吉田ビル 3F 【所在地】 港区西麻布2 【アクセス】 ■東京メトロ千代田線 「乃木坂」駅徒歩10分 ■東京…
こんにちは♪ AZplusスタッフです。
今回は、成城エリアにある店舗・事務所のご紹介です。

【所在地】
世田谷区成城6
【アクセス】
■小田急小田原線
「成城学園前」駅徒歩2分
■小田急小田原線
「祖師ヶ谷大蔵」駅徒歩12分
■小田急小田原線
「喜多見」駅徒歩18分
【面積】
68.80㎡(約20.81坪)


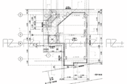
平面図

成城学園前駅徒歩2分
2方道路の新築物件のご紹介です。
ブランドエリアとしても人気の成城エリア!
2方道路に面しており、ガラス張りで視認性も抜群!
業種はご相談ください。
成城エリアで物件をお探しの方はお問い合わせください。
———————————————————-
AZplus(アズプラス)はこだわりの店舗物件情報を掲載中です!
AZplus運営会社:株式会社アドバンス・シティ・プランニング
お問合せフォームはこちら↓
https://azplus.jp/request/
お電話でのお問合せはこちら↓
TEL :03-5413-8778
店舗物件や不動産に関するご質問でもお気軽にご連絡下さい。
AZplusスタッフ
Category:物件紹介 , 【店舗物件】六本木・西麻布
こんにちは♪ AZplusスタッフです。 今回は、西麻布エリアにある店舗・事務所のご紹介です。 第二吉田ビル 3F 【所在地】 港区西麻布2 【アクセス】 ■東京メトロ千代田線 「乃木坂」駅徒歩10分 ■東京…
Category:物件紹介 , 【店舗物件】表参道・青山・外苑前
こんにちは♪ AZplusスタッフです。 今回は、表参道エリアにある店舗・事務所のご紹介です。 ラポール南青山 3F 【所在地】 港区南青山5 【アクセス】 ■東京メトロ銀座線・半蔵門線・千代田線 「表参道」…
Category:物件紹介 , 【店舗物件】六本木・西麻布
こんにちは♪ AZplusスタッフです。 今回は、六本木エリアにある店舗・事務所のご紹介です。 Solana六本木 1F 【所在地】 港区六本木7 【アクセス】 ■東京メトロ日比谷線 「六本木」駅徒歩4分 ■…