
赤坂駅徒歩4分!P有! 店舗相談!閑静なエリア
- 赤坂TKビル 2F-201号室
- 港区赤坂2-16-6
赤坂駅徒歩4分、赤坂通りと六本木通りに囲まれた閑静なエリアにある建物の2階!事務所仕様での引き渡し、サービス店舗も相談可能です。エレベーターもあります。また敷地内に駐車場もございます。(空き要確認)他のフ...
| 物件No | 階数 | 面積 | 賃料(税込) | 業種 | 別フロア |
|---|---|---|---|---|---|
| k218 | 2F201号室 | 16.17坪 | 322,740円 | なし |
こんにちは♪ AZplusスタッフです。
今回は、赤坂エリアにある店舗・事務所のご紹介です。

【所在地】
港区赤坂2
【アクセス】
■東京メトロ千代田線
「赤坂」駅徒歩4分
■東京メトロ銀座線・南北線
「溜池山王」駅徒歩8分
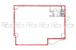
【面積】
53.46㎡(16.17坪)



赤坂駅徒歩4分、赤坂通りと六本木通りに囲まれた閑静なエリアにある建物の2階!
事務所仕様での引き渡し、サービス店舗も相談可能です。
エレベーターもあります。
また敷地内に駐車場もございます。(空き要確認)
他のフロアにはパーソナルジムが複数店舗、鮨店、事務所が入居中。
詳しくはAZplusまでお問い合わせください。
———————————————————-
AZplus(アズプラス)はこだわりの店舗物件情報を掲載中です!
AZplus運営会社:株式会社アドバンス・シティ・プランニング
お問合せフォームはこちら↓
https://azplus.jp/request/
お電話でのお問合せはこちら↓
TEL :03-5413-8778
店舗物件や不動産に関するご質問でもお気軽にご連絡下さい。
AZplusスタッフ

赤坂駅徒歩4分、赤坂通りと六本木通りに囲まれた閑静なエリアにある建物の2階!事務所仕様での引き渡し、サービス店舗も相談可能です。エレベーターもあります。また敷地内に駐車場もございます。(空き要確認)他のフ...
| 物件No | 階数 | 面積 | 賃料(税込) | 業種 | 別フロア |
|---|---|---|---|---|---|
| k218 | 2F201号室 | 16.17坪 | 322,740円 | なし |
Category:物件紹介 , 【店舗物件】白金・高輪エリア
こんにちは♪ AZplusスタッフです。 今回は、泉岳寺エリアにある店舗・事務所のご紹介です。 高輪2丁目ビル B1-5F 【所在地】 港区高輪2 【アクセス】 ■京急本線 「泉岳寺」駅徒歩5分 ■JR山手線…
Category:物件紹介 , 【店舗物件】渋谷駅周辺
こんにちは♪ AZplusスタッフです。 今回は、渋谷エリアにある店舗・事務所のご紹介です。 斉藤ビル 1F 【所在地】 渋谷区道玄坂1 【アクセス】 ■JR各線、東急東横線・田園都市線、東京メトロ銀座線・半…
Category:物件紹介 , 【店舗物件】麻布十番エリア
こんにちは♪ AZplusスタッフです。 今回は、麻布十番エリアにある店舗・事務所のご紹介です。 パークサイド麻布 1F-102号室 【所在地】 港区麻布十番2 【アクセス】 ■東京メトロ南北線、都営大江戸線…