
青山通り沿い!半地下! 店舗利用相談可能!
- 南青山ビル B1F
- 港区南青山2-11-13
外苑前駅徒歩3分、青山一丁目駅徒歩3分2アクセス利用可能な好立地の物件のご紹介です。青山通り沿いの半地下物件!店舗利用相談可!業種はご相談ください。他フロアにはカフェやエステ、オフィス等が入っています。青...
| 物件No | 階数 | 面積 | 賃料(税込) | 業種 | 別フロア |
|---|---|---|---|---|---|
| k245 | B1F | 14坪 | 358,050円 | なし |
こんにちは♪ AZplusスタッフです。
今回は、青山エリアにある店舗・事務所のご紹介です。

【所在地】
港区南青山2
【アクセス】
■東京メトロ銀座線
「外苑前」駅徒歩3分
■東京メトロ半蔵門線・銀座線
「青山一丁目」駅徒歩3分
■都営大江戸線
「青山一丁目」駅徒歩3分
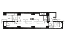
【面積】
46.3㎡(14坪)



外苑前駅徒歩3分、青山一丁目駅徒歩3分
2アクセス利用可能な好立地の物件のご紹介です。
青山通り沿いの半地下物件!
店舗利用相談可!業種はご相談ください。
他フロアにはカフェやエステ、オフィス等が入っています。
青山エリアで物件をお探しの方はお問い合わせください。
———————————————————-
AZplus(アズプラス)はこだわりの店舗物件情報を掲載中です!
AZplus運営会社:株式会社アドバンス・シティ・プランニング
お問合せフォームはこちら↓
https://azplus.jp/request/
お電話でのお問合せはこちら↓
TEL :03-5413-8778
店舗物件や不動産に関するご質問でもお気軽にご連絡下さい。
AZplusスタッフ

外苑前駅徒歩3分、青山一丁目駅徒歩3分2アクセス利用可能な好立地の物件のご紹介です。青山通り沿いの半地下物件!店舗利用相談可!業種はご相談ください。他フロアにはカフェやエステ、オフィス等が入っています。青...
| 物件No | 階数 | 面積 | 賃料(税込) | 業種 | 別フロア |
|---|---|---|---|---|---|
| k245 | B1F | 14坪 | 358,050円 | なし |
Category:物件紹介 , 【店舗物件】白金・高輪エリア
こんにちは♪ AZplusスタッフです。 今回は、白金エリアにある店舗・事務所のご紹介です。 白金台STビル 1F 【所在地】 港区白金台4 【アクセス】 ■東京メトロ南北線・都営三田線 「白金台」駅徒歩1分…
Category:物件紹介 , 【店舗物件】表参道・原宿・神宮前
こんにちは♪ AZplusスタッフです。 今回は、表参道エリアにある店舗のご紹介です。 AURA表参道 B101区画 【所在地】 渋谷区神宮前4 【アクセス】 ■東京メトロ半蔵門線・銀座線・千代田線 「表参道…
Category:物件紹介 , 【店舗物件】表参道・原宿・神宮前
こんにちは♪ AZplusスタッフです。 今回は、原宿、神宮前エリアにある店舗のご紹介です。 神宮前COURT B 2F 【所在地】 渋谷区神宮前4 【アクセス】 ■JR山手線 「原宿」駅徒歩7分 ■東京メト…