
飲食相談可!新築! 西麻布!外苑西通り傍!
- THE KOGAICHO 3F
- 港区西麻布4-10-3
広尾駅徒歩7分西麻布エリアの新築物件のご紹介です。3階!外苑西通りの1本隣の通りの角地の物件です!閑静なエリアの物件となりますが、周辺には飲食店もあります。飲食相談可能!業種はご相談ください。西麻布で物件...
| 物件No | 階数 | 面積 | 賃料(税込) | 業種 | 別フロア |
|---|---|---|---|---|---|
| k268 | 3F | 25.75坪 | 913,000円 | あり |
こんにちは♪ AZplusスタッフです。
今回は、西麻布エリアにある店舗・事務所のご紹介です。

【所在地】
港区西麻布4
【アクセス】
■東京メトロ日比谷線
「広尾」駅徒歩7分
■東京メトロ日比谷線、都営大江戸線
「六本木」駅徒歩12分
■都営大江戸線、東京メトロ南北線
「麻布十番」駅徒歩17分
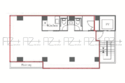
【面積】
85.11㎡(25.75坪)


広尾駅徒歩7分
西麻布エリアの新築物件のご紹介です。
3階!外苑西通りの1本隣の通りの角地の物件です!
閑静なエリアの物件となりますが、周辺には飲食店もあります。
飲食相談可能!業種はご相談ください。
西麻布で物件をお探しの方はお問い合わせください。
———————————————————-
AZplus(アズプラス)はこだわりの店舗物件情報を掲載中です!
AZplus運営会社:株式会社アドバンス・シティ・プランニング
お問合せフォームはこちら↓
https://azplus.jp/request/
お電話でのお問合せはこちら↓
TEL :03-5413-8778
店舗物件や不動産に関するご質問でもお気軽にご連絡下さい。
AZplusスタッフ

広尾駅徒歩7分西麻布エリアの新築物件のご紹介です。3階!外苑西通りの1本隣の通りの角地の物件です!閑静なエリアの物件となりますが、周辺には飲食店もあります。飲食相談可能!業種はご相談ください。西麻布で物件...
| 物件No | 階数 | 面積 | 賃料(税込) | 業種 | 別フロア |
|---|---|---|---|---|---|
| k268 | 3F | 25.75坪 | 913,000円 | あり |
Category:物件紹介 , 【店舗物件】六本木・西麻布 , 【店舗物件】広尾エリア
こんにちは♪ AZplusスタッフです。 今回は、西麻布エリアにある事務所のご紹介です。 早野ビル 6F-601号室 【所在地】 港区西麻布2 【アクセス】 ■東京メトロ日比谷線・都営大江戸線 「六本木」駅徒…
Category:物件紹介 , 【店舗物件】恵比寿・代官山エリア
こんにちは♪ AZplusスタッフです。 今回は、恵比寿エリアにある事務所のご紹介です。 リードシー恵比寿ビル B1F 【所在地】 渋谷区恵比寿南3 【アクセス】 ■JR各線 「恵比寿」駅徒歩7分 ■東京メト…
Category:物件紹介 , 【店舗物件】表参道・青山・外苑前
こんにちは♪ AZplusスタッフです。 今回は、外苑前エリアにある店舗のご紹介です。 ACN南青山スクエア 3F 【所在地】 港区南青山2 【アクセス】 ■東京メトロ銀座線 「外苑前」駅徒歩5分 ■東京メト…