Category:物件紹介 , 【店舗物件】六本木・西麻布
【店舗・事務所紹介】新築!六本木駅徒歩3分 飲食店相談可!天井高有
こんにちは♪ AZplusスタッフです。 今回は、六本木エリアにある店舗・事務所のご紹介です。 FUSION Roppongi Terrace B1F 【所在地】 港区六本木7 【アクセス】 ■東京メトロ日比…
こんにちは♪ AZplusスタッフです。
今回は、六本木エリアにある事務所のご紹介です。

【所在地】
港区六本木7
【アクセス】
■都営大江戸線・東京メトロ日比谷線
「六本木」駅徒歩4分
■東京メトロ千代田線
「乃木坂」駅徒歩8分
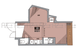
【面積】
34.13㎡(約10.32坪)




六本木駅徒歩4分、六本木西公園に隣接したデザイナーズ物件の3階貸事務所!
公園の前のため、視界良好!
入居者専用の屋上テラスがあります。
3階建てですが、エレベーターも付いております。
詳しくはAZplusまでお問い合わせください。
———————————————————-
AZplus(アズプラス)はこだわりの店舗物件情報を掲載中です!
AZplus運営会社:株式会社アドバンス・シティ・プランニング
お問合せフォームはこちら↓
https://azplus.jp/request/
お電話でのお問合せはこちら↓
TEL :03-5413-8778
店舗物件や不動産に関するご質問でもお気軽にご連絡下さい。
AZplusスタッフ
Category:物件紹介 , 【店舗物件】六本木・西麻布
こんにちは♪ AZplusスタッフです。 今回は、六本木エリアにある店舗・事務所のご紹介です。 FUSION Roppongi Terrace B1F 【所在地】 港区六本木7 【アクセス】 ■東京メトロ日比…
Category:物件紹介 , 【店舗物件】恵比寿・代官山エリア
こんにちは♪ AZplusスタッフです。 今回は、代官山エリアにある店舗・事務所のご紹介です。 代官山店舗・事務所ビル B1F 【所在地】 渋谷区恵比寿西1 【アクセス】 ■東急東横線 「代官山」駅 ■東急東…
Category:物件紹介 , 【店舗物件】恵比寿・代官山エリア
こんにちは♪ AZplusスタッフです。 今回は、恵比寿エリアにある店舗・事務所のご紹介です。 コルティス恵比寿 2F 【所在地】 渋谷区恵比寿西1 【アクセス】 ■JR各線、東京メトロ日比谷線 「恵比寿」駅…