
六本木通り沿い貸事務所 赤坂アークヒルズ前!
- オーイズミ六本木ビル 4F
- 港区六本木2-2-8
六本木一丁目駅より徒歩3分、溜池山王駅より徒歩7分、赤坂駅より徒歩8分六本木通り沿い、赤坂アークヒルズの向かいにある貸事務所。1階はコンビニ!裏の通りにも面しており、そちらからも出入りが出来ます。詳しくは...
| 物件No | 階数 | 面積 | 賃料(税込) | 業種 | 別フロア |
|---|---|---|---|---|---|
| v758 | 4F | 62.18坪 | 1,367,960円 | なし |
こんにちは♪ AZplusスタッフです。
今回は、六本木エリアにある事務所のご紹介です。

【所在地】
港区六本木2
【アクセス】
■東京メトロ南北線
「六本木一丁目」駅徒歩3分
■東京メトロ銀座線・南北線
「溜池山王」駅徒歩7分
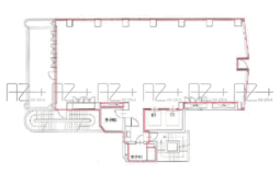
【面積】
205.56㎡(62.18坪)



六本木一丁目駅より徒歩3分、溜池山王駅より徒歩7分、赤坂駅より徒歩8分
六本木通り沿い、赤坂アークヒルズの向かいにある貸事務所。
1階はコンビニ!裏の通りにも面しており、そちらからも出入りが出来ます。
詳しくはAzplusまでお問い合わせ下さい。
———————————————————-
AZplus(アズプラス)はこだわりの店舗物件情報を掲載中です!
AZplus運営会社:株式会社アドバンス・シティ・プランニング
お問合せフォームはこちら↓
https://azplus.jp/request/
お電話でのお問合せはこちら↓
TEL :03-5413-8778
店舗物件や不動産に関するご質問でもお気軽にご連絡下さい。
AZplusスタッフ

六本木一丁目駅より徒歩3分、溜池山王駅より徒歩7分、赤坂駅より徒歩8分六本木通り沿い、赤坂アークヒルズの向かいにある貸事務所。1階はコンビニ!裏の通りにも面しており、そちらからも出入りが出来ます。詳しくは...
| 物件No | 階数 | 面積 | 賃料(税込) | 業種 | 別フロア |
|---|---|---|---|---|---|
| v758 | 4F | 62.18坪 | 1,367,960円 | なし |
Category:物件紹介 , 【店舗物件】渋谷駅周辺
こんにちは♪ AZplusスタッフです。 今回は、渋谷エリアにある店舗・事務所のご紹介です。 【所在地】 渋谷区渋谷1 【アクセス】 ■東京メトロ半蔵門線・副都心線・銀座線、東急田園都市線・東横線、京王井の頭…
Category:物件紹介 , 【店舗物件】渋谷駅周辺 , 【店舗物件】恵比寿・代官山エリア
こんにちは♪ AZplusスタッフです。 今回は、代官山エリアにある店舗のご紹介です。 代官山トゥエルブⅡ 1F-B区画 【所在地】 渋谷区鶯谷町8 【アクセス】 ■東急東横線 「代官山」駅徒歩8分 ■JR各…
Category:物件紹介 , 【店舗物件】渋谷駅周辺
こんにちは♪ AZplusスタッフです。 今回は、渋谷エリアにある店舗のご紹介です。 DUAL渋⾕道⽞坂 2F 【所在地】 渋谷区円山町20 【アクセス】 ■京王井の頭線 「神泉」駅徒歩3分 ■JR各線、東京…