
恵比寿駅2分!角地! サービス業可!3階!
- 恵比寿ヴェルソービル 3F
- 渋谷区恵比寿南1-11-13
恵比寿駅徒歩2分角地の3階部分のご紹介です。現況は事務所仕様となり、クリニックやサービス業可能です!他フロアにはイタリアンレストラン、美容クリニック、リラクゼーションサロン等が入っています。恵比寿エリアで...
| 物件No | 階数 | 面積 | 賃料(税込) | 業種 | 別フロア |
|---|---|---|---|---|---|
| k349 | 3F | 31.07坪 | 956,956円 | なし |
こんにちは♪ AZplusスタッフです。
今回は、恵比寿エリアにある店舗・事務所のご紹介です。

【所在地】
渋谷区恵比寿南1
【アクセス】
■東京メトロ日比谷線
「恵比寿」駅徒歩2分
■JR各線
「恵比寿」駅徒歩4分
■東急東横線
「代官山」駅徒歩10分
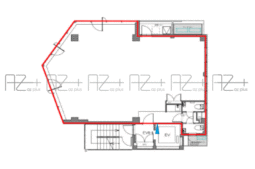
【面積】
102.74㎡(31.07坪)



恵比寿駅徒歩2分
角地の3階部分のご紹介です。
現況は事務所仕様となり、クリニックやサービス業可能です!
他フロアにはイタリアンレストラン、美容クリニック、リラクゼーションサロン等が入っています。
恵比寿エリアで物件をお探しの方はお問い合わせください。
———————————————————-
AZplus(アズプラス)はこだわりの店舗物件情報を掲載中です!
AZplus運営会社:株式会社アドバンス・シティ・プランニング
お問合せフォームはこちら↓
https://azplus.jp/request/
お電話でのお問合せはこちら↓
TEL :03-5413-8778
店舗物件や不動産に関するご質問でもお気軽にご連絡下さい。
AZplusスタッフ

恵比寿駅徒歩2分角地の3階部分のご紹介です。現況は事務所仕様となり、クリニックやサービス業可能です!他フロアにはイタリアンレストラン、美容クリニック、リラクゼーションサロン等が入っています。恵比寿エリアで...
| 物件No | 階数 | 面積 | 賃料(税込) | 業種 | 別フロア |
|---|---|---|---|---|---|
| k349 | 3F | 31.07坪 | 956,956円 | なし |
Category:物件紹介 , 【店舗物件】六本木・西麻布
こんにちは♪ AZplusスタッフです。 今回は、六本木エリアにある店舗・事務所のご紹介です。 FUSION Roppongi Terrace B1F 【所在地】 港区六本木7 【アクセス】 ■東京メトロ日比…
Category:物件紹介 , 【店舗物件】恵比寿・代官山エリア
こんにちは♪ AZplusスタッフです。 今回は、代官山エリアにある店舗・事務所のご紹介です。 代官山店舗・事務所ビル B1F 【所在地】 渋谷区恵比寿西1 【アクセス】 ■東急東横線 「代官山」駅 ■東急東…
Category:物件紹介 , 【店舗物件】恵比寿・代官山エリア
こんにちは♪ AZplusスタッフです。 今回は、恵比寿エリアにある店舗・事務所のご紹介です。 コルティス恵比寿 2F 【所在地】 渋谷区恵比寿西1 【アクセス】 ■JR各線、東京メトロ日比谷線 「恵比寿」駅…