
- 渋谷区渋谷1-7-2
- 16.95坪 8F
- 月額賃料:要相談
渋谷エリアの新築テナントビルのご紹介。1フロア1テナ...
※図面と写真が現況と異なる場合は、現況を優先とします。
| 物件No. | j784 |
|---|---|
| 物件名称 | VORT渋谷eastⅡ 9F |
| 所在地 | 渋谷区渋谷1-7-2 |
| 最寄駅 | ■東京メトロ半蔵門線・副都心線・銀座線、東急田園都市線・東横線、京王井の頭線 「渋谷」駅徒歩6分 ■JR各線 「渋谷」駅徒歩8分 ■東京メトロ銀座線・半蔵門線・千代田線 「表参道」駅徒歩8分 |
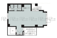
| 面積 | 50.46㎡(15.26坪) |
| 月額賃料 | 税込要相談 税別要相談 |
| 所在階 | 9F |
| 敷金 | 10ヶ月 |
| 更新料 | 1ヶ月 |
| 契約期間 | 普通借家契約2年 |
| 入居時期 | 即日入居可能 |
| 火災保険料 | 要加入 |
|---|---|
| 保証会社 | 要加入(VRサポート、保証委託料1ヶ月) |
| 天井高 | 3m |
| 構造・規模 | 鉄骨造11階建 |
| 設備 | ■電灯15kVA、動力10kW ■エレベーター1基 ■ガス引込あり ■男女別トイレあり |
| 竣工 | 2025年6月 |
| 備考 | ■事務所の場合:敷金5ヶ月 ※水廻り、空調設備を増改築する場合は別途預託金あり ■看板使用料:11,000円(税込)※必須 ■壁面使用料:16,500円(税込)※先着5区画(任意) ■内装監理費:坪16,500円(税込)※賃貸面積合計が200㎡以上、または水廻りの増改築等の大規模工事を行う場合 ■フリーレント3ヶ月相談可能 |
| 取引様態 | 媒介 |
| 仲介手数料 | 賃料の1ヶ月分(別途消費税) |
| 更新日 | 2026-01-15 |
渋谷エリアの新築テナントビルの最上階。
1フロア1テナントの構成で、内装は事務所仕様。
小さめながらもトイレは男女別で使い勝手も◎
事務所はもちろん、サロンやスクール等も◎
渋谷エリアで貸事務所、貸店舗をお探しの方にオススメ。
| 物件No | 階数 | 面積 | 賃料(税込) | 業種 | 詳細 |
|---|---|---|---|---|---|
| j780 | 1F | 15.57坪 | 要相談 | 閲覧 | |
| j781 | 3F | 17.07坪 | 要相談 | 閲覧 | |
| j782 | 6F | 17坪 | 要相談 | 閲覧 | |
| j783 | 8F | 16.95坪 | 要相談 | 閲覧 |






渋谷エリアの新築テナントビルのご紹介。1フロア1テナ...






渋谷エリアの貸店舗のご紹介。新築テナントビルの6階ワ...






渋谷エリアの貸店舗のご紹介。新築ビルの3階のワンフロ...








神南エリアの新築貸店舗のご紹介。新築テナントビルの9...









渋谷エリアの新築テナントビルのご紹介。8階の最上階の...
※図面と写真が現況と異なる場合は、現況を優先とします。