
- 目黒区青葉台3-19-9
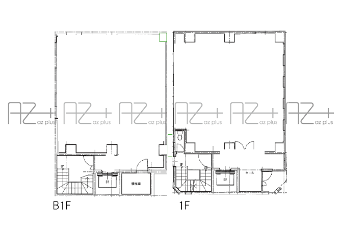
- 約55坪 B1-1F
- 月額賃料:1,573,000円
目黒川沿いの貸店舗事務所のご紹介。1-B1階の2フロ...
※図面と写真が現況と異なる場合は、現況を優先とします。
| 物件No. | j967 |
|---|---|
| 物件名称 | 第二久保ビル B1-1F |
| 所在地 | 目黒区青葉台3-19-9 |
| 最寄駅 | ■東急田園都市線 「池尻大橋」駅徒歩8分 ■東急東横線、東京メトロ日比谷線 「中目黒」駅徒歩12分 |
| 面積 | 182㎡(55坪) |
| 月額賃料 | 税込1,573,000円(坪単価@28,600円) 税別1,430,000円(坪単価@26,000円) |
| 所在階 | B1-1F |
| 保証金 | 6ヶ月分 |
| 礼金 | 1ヶ月分 |
| 償却 | 2ヶ月分 |
| 更新料 | 新賃料の1ヶ月分 |
| 契約期間 | 普通借家契約2年 |
|---|---|
| 入居時期 | 相談 |
| 火災保険料 | 要加入:包括相談、その他は貸主指定あり |
| 保証会社 | 要加入:貸主指定 |
| 構造・規模 | 鉄筋コンクリート造 地下1階付5階建 |
| 設備 | ■エレベーター ■専用トイレ ■ビルトインエアコン ■ミニキッチン ■電気・ガス(※湯沸器)・水道あり |
| 竣工 | 1986年3月 |
| 備考 | ■解約予告:6ヶ月 ■業種:相談(重飲食、美容室不可) ■現況渡し ■保証会社 初回保証料:月額総賃料の100% 年次保証料:10,000円+月額決算手数料330円 ■光熱費別途請求になります ■更新事務手数料:賃料の20% ■公共料金一部オーナーより別途請求あり ■鍵交換必須 ■地下1階:約95㎡、1階:約87㎡ |
| 取引様態 | 媒介 |
| 仲介手数料 | 賃料の1ヶ月分(別途消費税) |
| 更新日 | 2026-04-17 |
池尻大橋駅から徒歩8分!
中目黒駅からも徒歩圏内。
目黒川沿いに立地する物件のご紹介です。
春には桜が楽しめます。
事務所利用大歓迎。
店舗利用の場合はお問い合わせ下さい!




目黒川沿いの貸店舗事務所のご紹介。1-B1階の2フロ...






中目黒エリアの1階貸店舗のご紹介。物販店舗やサロンに...









中目黒エリアの一棟ビル飲食店もご相談可能な貸店舗です...







代官山駅徒歩1分、東口出てすぐのところにある建物の地...





池尻駅より徒歩7分、山手通り沿いにあるマンションの1...
※図面と写真が現況と異なる場合は、現況を優先とします。