
- 港区麻布十番3-6-2
- 35.01坪 13F
- 月額賃料:847,242円
麻布十番エリアの貸しオフィスのご紹介。サービス店舗も...
※図面と写真が現況と異なる場合は、現況を優先とします。
| 物件No. | k163 |
|---|---|
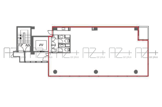
| 物件名称 | NS麻布十番ビル 12F |
| 所在地 | 港区麻布十番3-6-2 |
| 最寄駅 | ■東京メトロ南北線 「麻布十番」駅徒歩4分 ■都営大江戸線 「麻布十番」駅徒歩5分 ■都営大江戸線 「赤羽橋」駅徒歩6分 |
| 面積 | 115.75㎡(35.01坪) |
| 月額賃料 | 税込847,242円(坪単価@24,200円) 税別770,220円(坪単価@22,000円) |
| 月額共益費 | 税込115,533円(坪単価@3,300円) 税別105,030円(坪単価@3,000円) |
| 月額賃料+共益費 | 税込962,775円 税別875,250円 |
| 所在階 | 12F |
| 敷金 | 賃料の8ヶ月 |
| 償却 | 賃料の1ヶ月 |
| 更新料 | 新賃料の1ヶ月 |
| 契約期間 | 普通借家契約2年 |
|---|---|
| 入居時期 | 2025年11月23日 |
| 火災保険料 | 要加入 |
| 保証会社 | 要加入:ニッポンインシュア |
| 天井高 | 3.0m |
| 構造・規模 | 鉄筋コンクリート造 地下1階付13階建 |
| 設備 | ■エレベーター ■個別空調 ■ALSOKあり |
| 竣工 | 2008年8月 |
| 備考 | ■全口エントランスOPEN(7:00~20:00) |
| 取引様態 | 媒介 |
| 仲介手数料 | 賃料の1ヶ月分(別途消費税) |
| 更新日 | 2025-11-18 |
麻布十番のデザイナーズオフィス物件のご紹介。
シンプルでオシャレな内装が魅力。
サービス店舗ご相談可能!
| 物件No | 階数 | 面積 | 賃料(税込) | 業種 | 詳細 |
|---|---|---|---|---|---|
| k395 | 13F | 35.01坪 | 847,242円 | 閲覧 |


麻布十番エリアの貸しオフィスのご紹介。サービス店舗も...









麻布十番商店街沿いのテナントビルの8階ワンフロア。2...








麻布十番エリアの貸店舗のご紹介。角地に建つ建物の6階...







外苑前駅徒歩2分、スタジアム通り沿いにある築浅ビルの...







麻布十番駅徒歩3分、パティオ十番広場前、雑式通りの角...
※図面と写真が現況と異なる場合は、現況を優先とします。