
- 港区南青山6-6-22
- 11.83坪 6F
- 月額賃料:430,000円
表参道駅徒歩10分骨董通り沿いの新築物件のご紹介です...
※図面と写真が現況と異なる場合は、現況を優先とします。
| 物件No. | k230 |
|---|---|
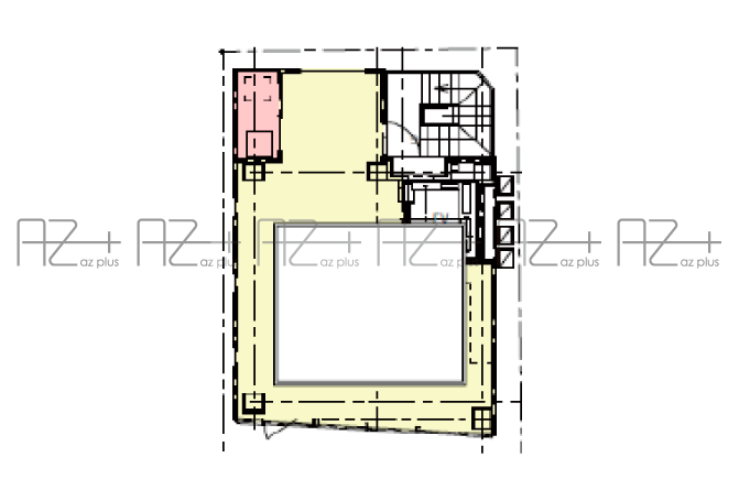
| 物件名称 | 南青山アバックビル 7F |
| 所在地 | 港区南青山6-6-22 |
| 最寄駅 | ■東京メトロ銀座線・半蔵門線・千代田線 「表参道」駅徒歩10分 |
| 面積 | 39.13㎡(11.83坪) |
| 月額賃料 | 税込470,000円(坪単価@約39,729円) 税別427,273円(坪単価@約36,117円) |
| 所在階 | 7F |
| 保証金 | 税込総賃料6ヶ月分 |
| 礼金 | 総賃料1ヶ月分(税込) |
| 償却 | 総賃料1ヶ月分(税込) |
| 契約期間 | 定期借家契約5年 |
| 入居時期 | 2026年1月以降(予定) |
|---|---|
| 火災保険料 | 要加入:指定あり |
| 保証会社 | 要加入(初回保証委託料1ヶ月分) |
| 構造・規模 | 鉄骨造10階建 |
| 設備 | ■電灯:10kVA ■動力:12kW ■ガス:6号(MAX) ■水道:25 ㎜ |
| 現況 | 空室(スケルトン) |
| 竣工 | 2025 年12月 |
| 取引様態 | 媒介 |
| 仲介手数料 | 賃料の1ヶ月分(別途消費税) |
| 更新日 | 2026-04-16 |
表参道駅徒歩10分
骨董通り沿いの新築物件のご紹介です。
7階のご紹介となります。
内照式看板あり!
飲食もご相談可能!その他業種もご相談ください。
南青山エリアで物件をお探しの方はお問い合わせください。
| 物件No | 階数 | 面積 | 賃料(税込) | 業種 | 詳細 |
|---|---|---|---|---|---|
| k231 | 6F | 11.83坪 | 430,000円 | 閲覧 |








表参道駅徒歩10分骨董通り沿いの新築物件のご紹介です...









六本木駅徒歩3分、六本木通りから1本入った通りに建築...









表参道駅徒歩3分。青山通り沿いから少し入った所にある...









六本木駅徒歩3分、六本木通りから1本入った通りに建築...









表参道駅徒歩3分。青山通り沿いから少し入った所にある...
※図面と写真が現況と異なる場合は、現況を優先とします。