
- 港区南青山6-13-9
- 32.34坪 B1F
- 月額賃料:894,300円
表参道駅より徒歩8分、骨董通りから駒沢通りへと続く通...
※図面と写真が現況と異なる場合は、現況を優先とします。
| 物件No. | k238 |
|---|---|
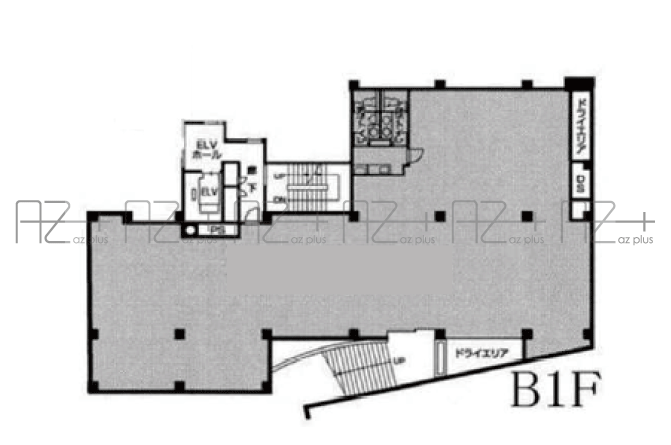
| 物件名称 | H&M南青山 EAST B1F-E102号室 |
| 所在地 | 港区南青山5-11-14 |
| 最寄駅 | ■東京メトロ銀座線・半蔵門線 「表参道」駅徒歩5分 ■東京メトロ千代田線 「表参道」駅徒歩4分 |
| 面積 | 290.60㎡(87.90坪) |
| 月額賃料 | 税込2,607,660円(坪単価@約29,666円) 税別2,370,600円(坪単価@約26,969円) |
| 月額共益費 | 税込462,000円(坪単価@約5,255円) 税別420,000円(坪単価@約4,778円) |
| 月額賃料+共益費 | 税込3,069,660円 税別2,790,600円 |
| 所在階 | B1FE102号室 |
| 敷金 | 10ヶ月 |
| 礼金 | 2ヶ月 |
| 契約期間 | 普通借家契約2年 |
|---|---|
| 入居時期 | 即日入居可能 |
| 火災保険料 | 要加入:その他合計49,500円 |
| 保証会社 | 要加入:ジェイリース、エルズサポート |
| 構造・規模 | 鉄筋コンクリート造 地下2階付6階建 |
| 設備 | ■エレベーター ■オートロック ■残置物(エアコン、換気設備 ※機能保証無) ■CATV対応可、インターネット光ファイバー対応可 |
| 竣工 | 1991年5月 |
| 備考 | ■ネームプレート作成費16,500円(税込) ■電気・水道料金別途請求 ■解約予告:6ヶ月前 ■保証会社 ・ジェイリース 保証料:賃料等の最大100%(最低4万円)、2年目~:最大1万円/年、口座振替手数料借主負担 ・エルズサポート 保証料:賃料等の最大100%(最低4万円)、2年目~:最大3万円/年、口座振替手数料借主負担 ■飲食店不可、業種応相談、24時間利用可 ■鍵交換代33,000円 |
| 取引様態 | 媒介 |
| 仲介手数料 | 賃料の1ヶ月分(別途消費税) |
| 更新日 | 2025-11-25 |
表参道駅徒歩5分
骨董通り至近の地下1階ワンフロアの物件のご紹介です。
24時間利用可能!
90坪超えの広々としたワンフロアの物件です。
事務所だけでなく、業種についてもご相談ください。
他フロアにはエステサロンや衣装レンタルショップ等が入っています。
表参道エリアで物件をお探しの方はお問い合わせください。





表参道駅より徒歩8分、骨董通りから駒沢通りへと続く通...



表参道駅徒歩10分骨董通り沿いの物件のご紹介です。ガ...






表参道駅徒歩8分骨董通り沿いの物件のご紹介です。事務...





表参道駅徒歩2分青山通り沿いの物件のご紹介です。3、...








表参道駅徒歩10分骨董通り沿いの物件のご紹介です。1...
※図面と写真が現況と異なる場合は、現況を優先とします。