
- 港区西麻布4-10-3
- 25.80坪 B1F
- 月額賃料:1,100,000円
広尾駅徒歩7分西麻布エリアの新築物件のご紹介です。地...
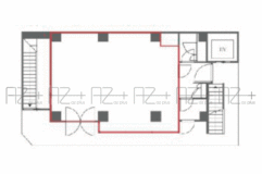
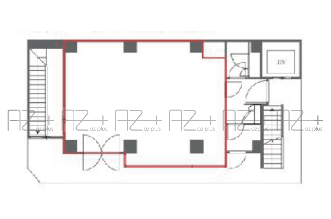
※図面と写真が現況と異なる場合は、現況を優先とします。
| 物件No. | k270 |
|---|---|
| 物件名称 | THE KOGAICHO 1F |
| 所在地 | 港区西麻布4-10-3 |
| 最寄駅 | ■東京メトロ日比谷線 「広尾」駅徒歩7分 ■東京メトロ日比谷線、都営大江戸線 「六本木」駅徒歩12分 ■都営大江戸線、東京メトロ南北線 「麻布十番」駅徒歩17分 |
| 面積 | 62.93㎡(19.04坪) |
| 月額賃料 | 税込1,210,000円(坪単価@約63,550円) 税別1,100,000円(坪単価@約57,773円) |
| 所在階 | 1F |
| 敷金 | 賃料の6ヶ月 |
| 契約期間 | 定期借家契約5年間 |
| 入居時期 | 相談 |
|---|---|
| 保証会社 | 要加入 |
| 構造・規模 | 鉄筋コンクリート造 地下1階付5階建 |
| 設備 | 設備概要は各フロア毎に異なる場合がございます |
| 竣工 | 2025年8月 |
| 備考 | ■再契約手数料:月額賃料の50% ■3年契約:2年間は解約不可 ■5年契約:3年間は解約不可 ■ネームプレート設置費用:50,000円(税込) |
| 取引様態 | 媒介 |
| 仲介手数料 | 賃料の1ヶ月分(別途消費税) |
| 更新日 | 2026-01-13 |
広尾駅徒歩7分
西麻布エリアの新築物件のご紹介です。
1階路面店!外苑西通りの1本隣の通りの角地の物件です!
閑静なエリアの物件となりますが、周辺には飲食店もあります。
飲食相談可能!業種はご相談ください。
西麻布で物件をお探しの方はお問い合わせください。
| 物件No | 階数 | 面積 | 賃料(税込) | 業種 | 詳細 |
|---|---|---|---|---|---|
| k267 | 2F | 26.55坪 | 880,000円 | 閲覧 | |
| k268 | 3F | 25.75坪 | 913,000円 | 閲覧 | |
| k271 | B1F | 25.80坪 | 1,100,000円 | 閲覧 |







広尾駅徒歩7分西麻布エリアの新築物件のご紹介です。地...









六本木駅徒歩4分、龍土町美術館通りから1本入ったとこ...








広尾駅徒歩7分西麻布エリアの新築物件のご紹介です。3...








広尾駅徒歩7分西麻布エリアの新築物件のご紹介です。2...








広尾駅から徒歩9分!六本木駅から徒歩11分!西麻布交...
※図面と写真が現況と異なる場合は、現況を優先とします。