
- 渋谷区恵比寿南3-1-8
- 約18.30坪 1F
- 月額賃料:742,000円
恵比寿駅徒歩3分、恵比寿南三丁目交差点から細い通りに...
※図面と写真が現況と異なる場合は、現況を優先とします。
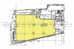
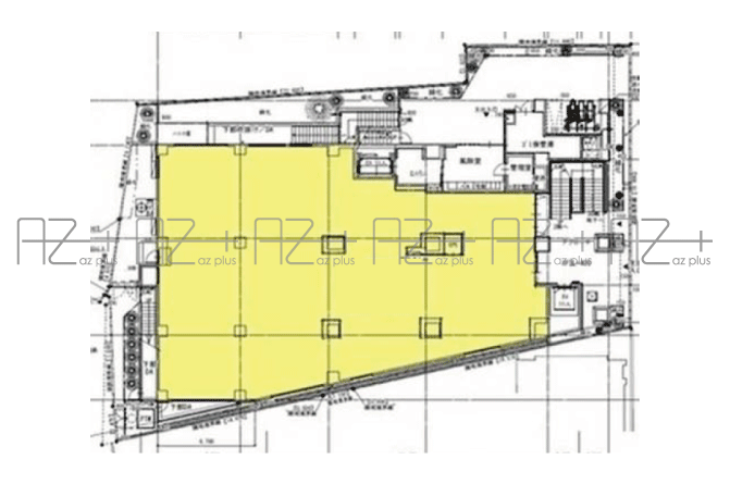
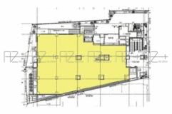
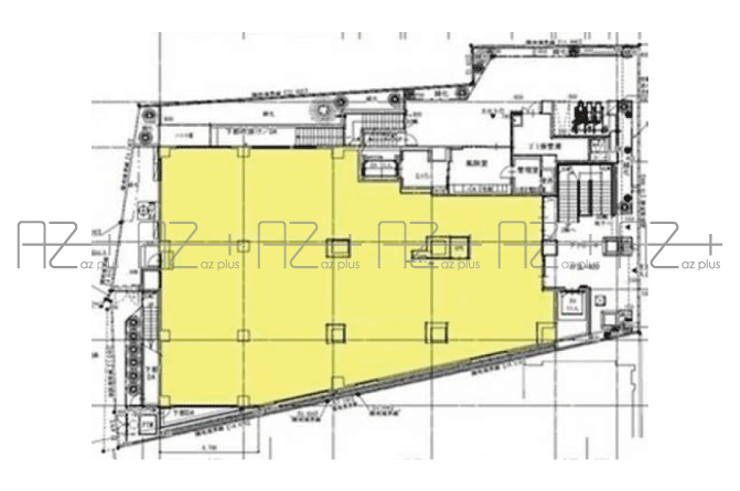
| 物件No. | k279 |
|---|---|
| 物件名称 | ENetial代官山 1F-002号室 |
| 所在地 | 渋谷区猿楽町11-8 |
| 最寄駅 | ■東急東横線 「代官山」駅徒歩3分 |
| 面積 | 391.57㎡(118.44坪) |
| 月額賃料 | 税込5,211,360円(坪単価@44,000円) 税別4,737,600円(坪単価@40,000円) |
| 所在階 | 1F002号室 |
| 敷金 | 10ヶ月 |
| 礼金 | 1ヶ月(税別) |
| 契約期間 | 定期借家契約10年 |
| 入居時期 | 即日入居可 |
|---|---|
| 火災保険料 | 要加入 |
| 保証会社 | 要加入 |
| 構造・規模 | 鉄筋コンクリート造 地下1階付10階建 |
| 設備 | ■回線設備:BS対応可、CS対応可、電話回線(工事費入居者負担有) ■オートロック ■防犯カメラ ■常時ゴミ出し可能 ■TVモニター付インターホン ■エレベーター ■宅配ボックス ■メールボックス ■自転車置場(無料) ■バイク置場(有料) ■ゴミ置場 |
| 竣工 | 2025年1月 |
| 備考 | ■看板設置相談可(賃借人負担) ■入居中退去時修繕原状回復特約有 ■保証会社 ・ジェイリース:保証料/賃料等の最大100%(最低4万)、2年目~:最大1万円/年、口座振替手数料借主負担 ・エルズサポート:保証料/賃料等の最大100%(最低4万)、2年目~:最大3万円/年 |
| 取引様態 | 媒介 |
| 仲介手数料 | 賃料の1ヶ月分(別途消費税) |
| 更新日 | 2026-04-23 |
代官山駅徒歩3分の新築物件のご紹介です。
駅を出て直ぐの商業施設の目の前の物件です。
100坪越えの1階部分!業種はご相談ください!
代官山エリアで物件をお探しの方はお問い合わせください。









恵比寿駅徒歩3分、恵比寿南三丁目交差点から細い通りに...







原宿エリアの貸店舗のご紹介。竹下通りから少し入った立...







代官山駅徒歩1分角地の地下1階の物件のご紹介です。地...








白金台駅徒歩2分、目黒通り至近!目黒通りからも見える...








白金台駅より徒歩3分、プラチナ通り沿い(外苑西通り沿...
※図面と写真が現況と異なる場合は、現況を優先とします。