
- 杉並区高円寺北2-34-(未定)
- 約8.32坪 1F
- 月額賃料:347,776円
高円寺駅徒歩5分、高円寺あづま通り商店街沿いの角地に...
※図面と写真が現況と異なる場合は、現況を優先とします。
| 物件No. | k284 |
|---|---|
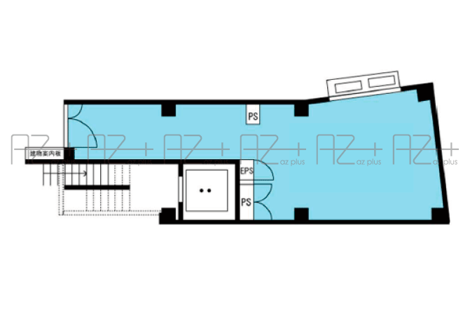
| 物件名称 | COCOSPACE高田馬場 1F |
| 所在地 | 新宿区高田馬場4-28-20 |
| 最寄駅 | ■JR山手線、東京メトロ東西線、西武新宿線 「高田馬場」駅徒歩5分 |
| 面積 | 38.96㎡(11.78坪) |
| 月額賃料 | 税込388,740円(坪単価@33,000円) 税別353,400円(坪単価@30,000円) |
| 所在階 | 1F |
| 敷金 | 賃料の8ヶ月分 |
| 礼金 | 賃料の1ヶ月分(別途消費税) |
| 更新料 | 新賃料の1ヶ月分(別途消費税) |
| 契約期間 | 普通借家契約3年 |
| 入居時期 | 要相談 |
| 火災保険料 | 要加入:費用要負担 |
|---|---|
| 保証会社 | 要加入:(株)セーフティーイノベーション(初回:税込賃料の1ヶ月分 更新:税込賃料の1ヶ月分の10%/1年) |
| 天井高 | 約3.08m |
| 構造・規模 | 鉄骨造地上8階建 |
| 設備 | ■電気:電灯15KVA 動力12KW ■水道:給水20A 排水100A ■ガス:50A ■屋上までのダクトあり |
| 現況 | 入居中、居酒屋営業中 |
| 竣工 | 2018年9月 |
| 備考 | ■解約予告:6ヶ月前 ■ゴミ処理代:別途契約費用要負担 ■引き渡し:スケルトン(屋上までのダクト有) ※居抜での引き渡し相談可 造作譲渡の内容については別途要相談 原状回復義務継承 ■看板:事前にデザイン・大きさ・仕様等を提出し、貸主に承認を得ることにより設置相談可 ■館銘板:ビル入口に有 ■業種:全て相談(風営法業態・カラオケは不可) ■営業時間:24時間営業可 ■24時間利用:可 ■造作譲渡相談可 |
| 取引様態 | 貸主 |
| 仲介手数料 | なし |
| 更新日 | 2025-12-08 |
高田馬場駅徒歩5分、早稲田通り沿いにあるデザイナーズビルの1階貸店舗。
道路から数段降りた、1階になります。
現状、居酒屋営業中、居抜きでの引き渡しも相談可能です。
造作譲渡相談!内容については別途要相談となります。
天井高は約3m!、ダクトは屋上まで元々付いております。
業種等、詳細についてはAZplusまでお問い合わせください。









高円寺駅徒歩5分、高円寺あづま通り商店街沿いの角地に...









六本木駅徒歩4分、龍土町美術館通りから1本入ったとこ...









阿佐ヶ谷駅徒歩3分、年中人通りの多い阿佐ヶ谷パールセ...








表参道駅徒歩4分青山通り付近の物件のご紹介です。全面...









代々木八幡駅、代々木公園駅徒歩1分小さめの飲食店や美...
※図面と写真が現況と異なる場合は、現況を優先とします。