
- 世田谷区太子堂2-17
- 19.52坪 8F
- 月額賃料:要相談
三軒茶屋駅徒歩3分、茶沢通り沿いの角地にある新築ビル...
※図面と写真が現況と異なる場合は、現況を優先とします。
| 物件No. | k289 |
|---|---|
| 物件名称 | ACN三軒茶屋ビル 6F |
| 所在地 | 世田谷区太子堂2-17 |
| 最寄駅 | ■東急田園都市線、世田谷線 「三軒茶屋」駅徒歩3分 |
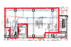
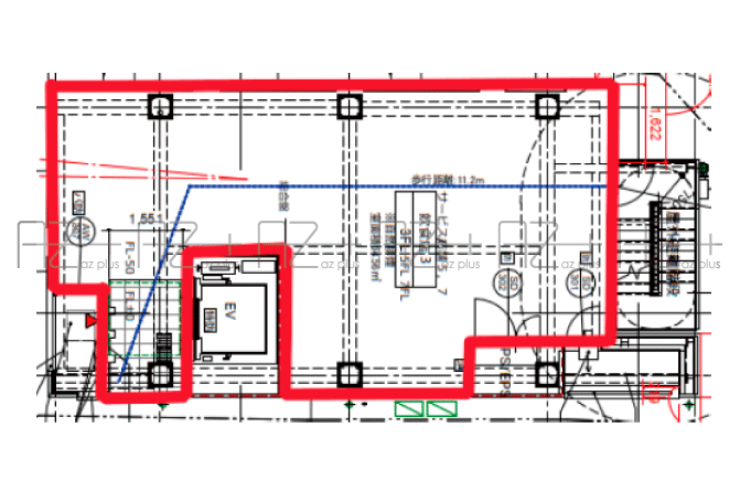
| 面積 | 64.56㎡(19.52坪) |
| 月額賃料 | 税込要相談 税別要相談 |
| 所在階 | 6F |
| 敷金 | 8ヶ月(要相談) |
| 償却 | 1ヶ月分 |
| 再契約料 | 1ヶ月分 |
| 契約期間 | 定期借家契約3年 |
| 入居時期 | 即日入居可能 |
|---|---|
| 火災保険料 | 要加入 |
| 保証会社 | 要加入 |
| 天井高 | 2.85m |
| 構造・規模 | 鉄骨造8階建 |
| 設備 | ■エレベータ:1基(不停止付き) |
| 竣工 | 2025年10月 |
| 備考 | ■フリーレント相談※期間中、3,000円/坪 ■1Fエントランスにデジタルサイネージあり(動画も掲出可) ■全フロアバリアフリー化 ■最適用途:エステ、美容室(飲食店は不可) エアコン設置はB工事です。 |
| 取引様態 | 媒介 |
| 仲介手数料 | 賃料の1ヶ月分(別途消費税) |
| 更新日 | 2025-12-25 |
三軒茶屋駅徒歩3分、茶沢通り沿いの角地にある新築ビルの6階貸店舗!
人通り◎
サービス店舗向けのフロアになります。
業種等詳しくはAZplusまでお問い合わせください。
| 物件No | 階数 | 面積 | 賃料(税込) | 業種 | 詳細 |
|---|---|---|---|---|---|
| k285 | 2F | 19.52坪 | 要相談 | 閲覧 | |
| k286 | 3F | 19.52坪 | 要相談 | 閲覧 | |
| k287 | 4F | 16.29坪 | 要相談 | 閲覧 | |
| k288 | 5F | 19.52坪 | 要相談 | 閲覧 | |
| k290 | 7F | 19.52坪 | 要相談 | 閲覧 | |
| k291 | 8F | 19.52坪 | 要相談 | 閲覧 |









三軒茶屋駅徒歩3分、茶沢通り沿いの角地にある新築ビル...







三軒茶屋駅徒歩3分、茶沢通り沿いの角地にある新築ビル...







三軒茶屋駅徒歩3分、茶沢通り沿いの角地にある新築ビル...









三軒茶屋駅徒歩3分、茶沢通り沿いの角地にある新築ビル...









三軒茶屋駅徒歩3分、茶沢通り沿いの角地にある新築ビル...
※図面と写真が現況と異なる場合は、現況を優先とします。