
- 渋谷区渋谷4-5-5
- 29.18坪 8F
- 月額賃料:1,168,000円
渋谷駅徒歩7分六本木通り沿いの新築物件のご紹介です。...
※図面と写真が現況と異なる場合は、現況を優先とします。
| 物件No. | k334 |
|---|---|
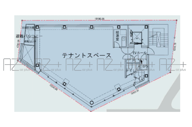
| 物件名称 | 渋谷山崎文栄堂ビル(仮称) 3F |
| 所在地 | 渋谷区渋谷4-5-5 |
| 最寄駅 | ■JR各線、東京メトロ銀座線・半蔵門線・副都心線、東急東横線・田園都市線、京王井の頭線 「渋谷」駅徒歩7分 ■東京メトロ銀座線、千代田線、半蔵門線 「表参道」駅徒歩10分 |
| 面積 | 96.48㎡(29.18坪) |
| 月額賃料 | 税込1,112,000円(坪単価@約38,108円) 税別1,010,909円(坪単価@約34,643円) |
| 月額管理費 | 税込55,000円(坪単価@約1,884円) 税別50,000円(坪単価@約1,713円) |
| 月額賃料+管理費 | 税込1,167,000円 税別1,060,909円 |
| 所在階 | 3F |
| 保証金 | 6ヶ月 |
| 礼金 | 1ヶ月 |
|---|---|
| 契約期間 | 定期借家契約5年 |
| 入居時期 | 2026年7月以降予定 |
| 構造・規模 | 鉄骨造9階建 |
| 設備 | ■スケルトン ■給湯室あり ■空調・照明器具等の設備なし ■1階に共用のゴミ置場設置予定 ■専有部内に各階2ヵ所あり ■南西向き ■別途、共有スペースについての使用ルールあり |
| 竣工 | 2026年6月末竣工予定 |
| 取引様態 | 媒介 |
| 仲介手数料 | 賃料の1ヶ月分(別途消費税) |
| 更新日 | 2026-01-06 |
渋谷駅徒歩7分
六本木通り沿いの新築物件のご紹介です。
お洒落な外観のデザイナーズ物件!3階!
1テナント1フロアで各階専有部にトイレ2か所付き!
業種はご相談ください。
渋谷エリアで物件のお探しの方はお問い合わせください。
| 物件No | 階数 | 面積 | 賃料(税込) | 業種 | 詳細 |
|---|---|---|---|---|---|
| k333 | 2F | 29.18坪 | 1,112,000円 | 閲覧 | |
| k335 | 4F | 29.18坪 | 1,112,000円 | 閲覧 | |
| k336 | 8F | 29.18坪 | 1,168,000円 | 閲覧 |





渋谷駅徒歩7分六本木通り沿いの新築物件のご紹介です。...





渋谷駅徒歩7分六本木通り沿いの新築物件のご紹介です。...





渋谷駅徒歩7分六本木通り沿いの新築物件のご紹介です。...








渋谷駅徒歩7分、公園通りの角地に建築中の新築店舗ビル...








渋谷駅徒歩7分、公園通りの角地に建築中の新築店舗ビル...
※図面と写真が現況と異なる場合は、現況を優先とします。