
- 渋谷区神南1-9-5
- 12.20坪 8F
- 月額賃料:要相談
渋谷エリアの新築テナントビルのご紹介。8階の最上階の...
※図面と写真が現況と異なる場合は、現況を優先とします。
| 物件No. | k354 |
|---|---|
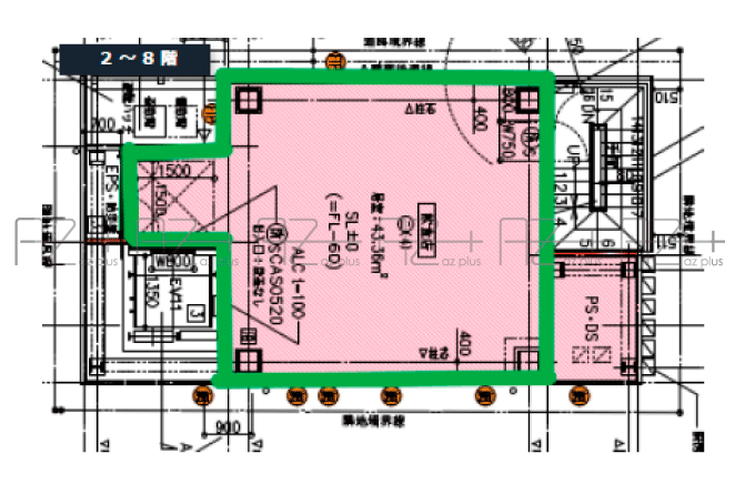
| 物件名称 | ACN渋谷神南ビル 3F |
| 所在地 | 渋谷区神南1-9-5 |
| 最寄駅 | ■東京メトロ銀座線・半蔵門線・副都心線 「渋谷」駅徒歩6分 ■JR各線 「渋谷」駅徒歩9分 ■東急東横線・田園都市線 「渋谷」駅徒歩6分 |
| 面積 | 40.33㎡(12.20坪) |
| 月額賃料 | 税込要相談 税別要相談 |
| 所在階 | 3F |
| 敷金 | 8ヶ月(要相談) |
| 償却 | 1ヶ月分 |
| 再契約料 | 1ヶ月分 |
| 契約期間 | 定期借家契約3年 |
| 入居時期 | 2026年3月 |
|---|---|
| 火災保険料 | 要加入 |
| 保証会社 | 要加入 |
| 構造・規模 | 鉄骨造一部鉄筋コンクリート造 地下1階付8階建 |
| 設備 | ■エレベーター1基 |
| 竣工 | 2026年2月竣工予定 |
| 備考 | ■フリーレント:相談 ※期間中、3,000円/坪 |
| 取引様態 | 媒介 |
| 仲介手数料 | 賃料の1ヶ月分(別途消費税) |
| 更新日 | 2026-04-20 |
神南エリアの新築テナントビルのご紹介。
3階のワンフロアで飲食店もご相談可!
渋谷エリアで貸店舗をお探しの方、是非お問合せ下さい!
| 物件No | 階数 | 面積 | 賃料(税込) | 業種 | 詳細 |
|---|---|---|---|---|---|
| k355 | 4F | 12.20坪 | 要相談 | 閲覧 | |
| k356 | 8F | 12.20坪 | 要相談 | 閲覧 |









渋谷エリアの新築テナントビルのご紹介。8階の最上階の...







渋谷エリアの新築テナントビルのご紹介。サロン等におス...








渋谷駅徒歩7分、公園通りの角地に建築中の新築店舗ビル...








渋谷駅徒歩7分、公園通りの角地に建築中の新築店舗ビル...








渋谷駅徒歩7分、公園通りの角地に建築中の新築店舗ビル...
※図面と写真が現況と異なる場合は、現況を優先とします。