
- 渋谷区円山町5-2
- 16.61坪 7F
- 月額賃料:要相談
渋谷駅徒歩5分道玄坂沿いの物件のご紹介です。お洒落な...
※図面と写真が現況と異なる場合は、現況を優先とします。
| 物件No. | k365 |
|---|---|
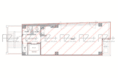
| 物件名称 | 第35荒井ビル 6F |
| 所在地 | 渋谷区渋谷1-1-3 |
| 最寄駅 | ■JR各線、東京メトロ銀座線・半蔵門線・副都心線、東急東横線・田園都市線、京王井の頭線 「渋谷」駅徒歩7分 ■東京メトロ銀座線・千代田線・半蔵門線 「表参道」駅徒歩6分 |
| 面積 | 60.46㎡(18.29坪) |
| 月額賃料 | 税込要相談 税別要相談 |
| 所在階 | 6F |
| 敷金 | 賃料3ヶ月分(保証会社必須) |
| 契約期間 | 2年間 |
| 天井高 | 2.4m |
|---|---|
| 構造・規模 | 鉄骨鉄筋コンクリート造 地下1階付9階建 |
| 設備 | ■エレベーター1基 ■24時間遠隔監視システム(セコム機械警備) ■個別空調:天井カセット方式 |
| 竣工 | 1989年6月 |
| 備考 | ■敷金:保証会社利用しない場合は別途相談可 |
| 取引様態 | 媒介 |
| 仲介手数料 | 賃料の1ヶ月分(別途消費税) |
| 更新日 | 2026-02-06 |
渋谷駅徒歩7分、表参道駅徒歩6分
青山通り沿いの物件のご紹介です。
事務所向けの物件となりますが、業種もご相談ください。
渋谷、表参道エリアで物件をお探しの方はお問い合わせください。




渋谷駅徒歩5分道玄坂沿いの物件のご紹介です。お洒落な...





渋谷駅徒歩7分六本木通り沿いの新築物件のご紹介です。...





渋谷駅徒歩7分六本木通り沿いの新築物件のご紹介です。...





渋谷駅徒歩7分六本木通り沿いの新築物件のご紹介です。...








渋谷駅徒歩7分、公園通りの角地に建築中の新築店舗ビル...
※図面と写真が現況と異なる場合は、現況を優先とします。