
- 渋谷区渋谷1-1-3
- 18.29坪 6F
- 月額賃料:要相談
渋谷駅徒歩7分、表参道駅徒歩6分青山通り沿いの物件の...
※図面と写真が現況と異なる場合は、現況を優先とします。
| 物件No. | k378 |
|---|---|
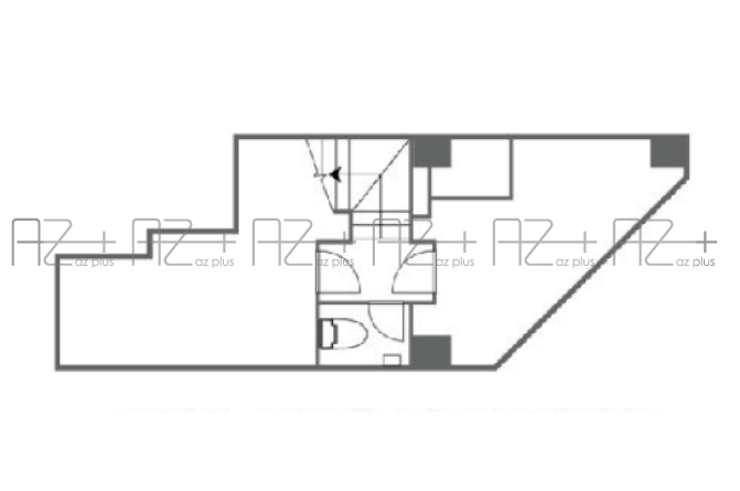
| 物件名称 | 渋谷Tビル B1F |
| 所在地 | 渋谷区宇田川町27-6 |
| 最寄駅 | ■JR各線、東京メトロ銀座線・半蔵門線・副都心線、東急東横線・田園都市線、京王井の頭線 「渋谷」駅徒歩4分 ■京王井の頭線 「神泉」駅徒歩9分 ■東京メト千代田線、副都心線 「明治神宮前」駅徒歩17分 |
| 面積 | 26.67㎡(8.06坪) |
| 月額賃料 | 税込880,000円(坪単価@約109,181円) 税別800,000円(坪単価@約99,255円) |
| 所在階 | B1F |
| 敷金 | 賃料の12ヶ月 |
| 礼金 | 賃料の1ヶ月 |
| 償却 | 賃料の1ヶ月 |
| 契約期間 | 定期借家契約3年 |
|---|---|
| 入居時期 | 即日入居可能 |
| 保証会社 | 要加入 |
| 構造・規模 | 鉄骨鉄筋コンクリート造 地下1階付7階建 |
| 竣工 | 1991年10月 |
| 備考 | ■直通階段あり ■現況渡し(エアコン・トイレ残置) ■2室一帯での募集となります |
| 取引様態 | 媒介 |
| 仲介手数料 | 賃料の1ヶ月分(別途消費税) |
| 更新日 | 2026-01-27 |
渋谷駅徒歩4分
文化村通り沿い、角地の物件のご紹介です。
人通りが多く、活気のあるエリアです!
現況渡しとなり、エアコンとトイレが残置物です。
業種はご相談ください。
渋谷エリアで物件をお探しの方はお問い合わせください。





渋谷駅徒歩7分、表参道駅徒歩6分青山通り沿いの物件の...




渋谷駅徒歩5分道玄坂沿いの物件のご紹介です。お洒落な...








千駄ヶ谷エリアの一棟ビルのご紹介。ショールーム等にお...









渋谷駅から徒歩3分!明治通り沿いに立地する新築テナン...





渋谷駅から徒歩7分。道玄坂沿いに建つ新築ビルのご紹介...
※図面と写真が現況と異なる場合は、現況を優先とします。