
- 港区北青山3-10-2
- 18.77坪 1F
- 月額賃料:1,032,350円
表参道駅徒歩2分駅近の隠れ家立地の物件のご紹介です。...
※図面と写真が現況と異なる場合は、現況を優先とします。
| 物件No. | k394 |
|---|---|
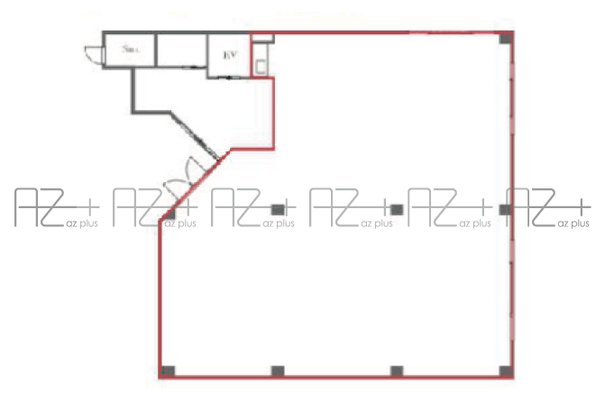
| 物件名称 | モン・ブルービル 1F |
| 所在地 | 港区南青山5-16-14 |
| 最寄駅 | ■東京メトロ銀座線・半蔵門線・千代田線 「表参道」駅徒歩6分 |
| 面積 | 216.41㎡(65.46坪) |
| 月額賃料 | 税込3,544,288円(坪単価@約54,144円) 税別3,222,080円(坪単価@約49,222円) |
| 月額共益費 | 税込144,012円(坪単価@2,200円) 税別130,920円(坪単価@2,000円) |
| 月額賃料+共益費 | 税込3,688,300円 税別3,353,000円 |
| 所在階 | 1F |
| 敷金 | 賃料の12ヶ月 |
| 礼金 | 賃料の1ヶ月 |
| 償却 | 20% |
|---|---|
| 契約期間 | 定期借家契約5年間 |
| 入居時期 | 2026年5月1日 |
| 構造・規模 | 鉄筋コンクリート造3階建 |
| 設備 | ■個別空調 ■エレベーター1基 ■駐車場あり ■男女別トイレ ■給湯室 ■エアコン6基 |
| 竣工 | 1988年2月 |
| 備考 | ■賃料には全面駐車場、及び看板使用料が含まれます |
| 取引様態 | 媒介 |
| 仲介手数料 | 賃料の1ヶ月分(別途消費税) |
| 更新日 | 2026-02-24 |
表参道駅徒歩6分、骨董通りから1本入ったところにある建物の1階店舗。
低層ならではのゆとりを感じる閑静なエリアとなります。
このあたりでは希少な前面駐車場付!
賃料には前面駐車場、看板使用料も含んでおります。
詳しくはAZplusまでお問い合わせください。






表参道駅徒歩2分駅近の隠れ家立地の物件のご紹介です。...








青山一丁目駅徒歩3分、外苑前駅より徒歩4分、青山通り...








外苑前駅徒歩5分、外苑西通りの1本裏道にあるガラス張...





表参道駅徒歩7分、外苑前駅徒歩7分、長者丸通りから少...






外苑前駅徒歩4分! 表参道駅徒歩8分!外苑西通り至近...
※図面と写真が現況と異なる場合は、現況を優先とします。