
- 渋谷区千駄ヶ谷2-34
- 約35.85坪 1-2F
- 月額賃料:792,000円
千駄ヶ谷エリアの一棟貸物件のご紹介。1階2階の2フロ...
※図面と写真が現況と異なる場合は、現況を優先とします。
| 物件No. | k399 |
|---|---|
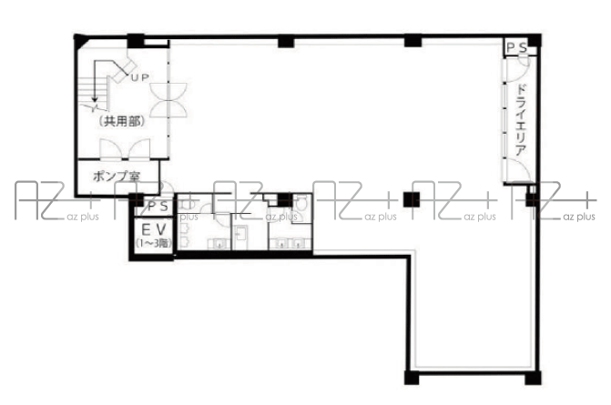
| 物件名称 | 千駄ヶ谷尾澤ビル B1F |
| 所在地 | 渋谷区千駄ヶ谷1-7-8 |
| 最寄駅 | ■JR総武線 「千駄ヶ谷」駅徒歩5分 ■都営大江戸線 「国立競技場」駅徒歩5分 ■東京メトロ副都心線 「北参道」駅徒歩5分 |
| 面積 | 202.4㎡(61.22坪) |
| 月額賃料 | 税込1,210,000円(坪単価@約19,764円) 税別1,100,000円(坪単価@約17,967円) |
| 月額共益費 | 税込55,000円(坪単価@約898円) 税別50,000円(坪単価@約816円) |
| 月額賃料+共益費 | 税込1,265,000円 税別1,150,000円 |
| 所在階 | B1F |
| 敷金 | 税抜賃料の5ヶ月分 |
| 礼金 | 賃料の1ヶ月分 |
| 更新料 | 新賃料の1ヶ月分 |
| 契約期間 | 2年 |
|---|---|
| 入居時期 | 確認中 |
| 火災保険料 | 要加入 |
| 保証会社 | 要加入:指定(日本セーフティー) |
| 構造・規模 | 鉄筋コンクリート造 地下1階付3階建 |
| 設備 | ■男女別専用トイレ |
| 現況 | 空室 |
| 竣工 | 1988年1月28日 |
| 備考 | ■保証会社 初回保証料:賃料等総額100% 継続保証料:賃料等総額の0.8%(月額)※最低800円 口座振替手数料:220円/付(27日振替) ■解約予告:6ヶ月前 ■期間内解約違約金:2ヶ月 ■飲食不可 ■看板設置要相談 ■荷物撤去中のため内見不可 ■24時間緊急電話受付 |
| 取引様態 | 媒介 |
| 仲介手数料 | 賃料の1ヶ月分(別途消費税) |
| 更新日 | 2026-03-13 |
千駄ヶ谷エリアの地下1階ワンフロア。
地下ではありますが、広めのドライエリアからアプローチ。
物販やスクール等、サービス店舗におススメ。
千駄ヶ谷エリアで貸店舗、貸事務所をお探しなら!





千駄ヶ谷エリアの一棟貸物件のご紹介。1階2階の2フロ...








千駄ヶ谷エリアの一棟ビルのご紹介。ショールーム等にお...






渋谷駅徒歩4分、井の頭線渋谷駅からは徒歩1分!道玄坂...




原宿駅徒歩5分、北参道駅徒歩6分明治通りから小道に入...








恵比寿駅徒歩5分一棟貸しの隠れ家物件のご紹介です。駅...
※図面と写真が現況と異なる場合は、現況を優先とします。