
- 渋谷区神南1-15(以下未定)
- 19.02坪 2F
- 月額賃料:1,518,000円
渋谷駅徒歩7分、公園通りの角地に建築中の新築店舗ビル...
※図面と写真が現況と異なる場合は、現況を優先とします。
| 物件No. | k413 |
|---|---|
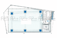
| 物件名称 | 神南一丁目新築店舗ビル 1F |
| 所在地 | 渋谷区神南1-15(以下未定) |
| 最寄駅 | ■JR各線、東京メトロ銀座線・半蔵門線・副都心線、東急東横線・田園都市線、京王井の頭線 「渋谷」駅徒歩7分 |
| 面積 | 62.86㎡(19.02坪) |
| 月額賃料 | 税込2,510,640円(坪単価@132,000円) 税別2,282,400円(坪単価@120,000円) |
| 月額管理費 | 税込88,000円(坪単価@約4,626円) 税別80,000円(坪単価@約4,206円) |
| 月額賃料+管理費 | 税込2,598,640円 税別2,362,400円 |
| 所在階 | 1F |
| 保証金 | 10ヶ月 |
| 礼金 | 2ヶ月 |
| 償却 | 20% |
| 更新料 | 1ヶ月 |
|---|---|
| 契約期間 | 普通借家契約3年 |
| 入居時期 | 相談 |
| 火災保険料 | 要加入 |
| 保証会社 | 要加入:貸主指定 |
| 構造・規模 | 鉄骨造8階建 |
| 設備 | ■エレベーター1基 |
| 竣工 | 2026年12月予定 |
| 備考 | ■内装監理費:1ヶ月 ■スケルトン渡し |
| 取引様態 | 媒介 |
| 仲介手数料 | 賃料の1ヶ月分(別途消費税) |
| 更新日 | 2026-03-04 |
渋谷駅徒歩7分、公園通りの角地に建築中の新築店舗ビルの1階店舗。
2面ガラス張り!視認性の良いビルです。
詳細等詳しくはAzplusまでお問い合わせください。
| 物件No | 階数 | 面積 | 賃料(税込) | 業種 | 詳細 |
|---|---|---|---|---|---|
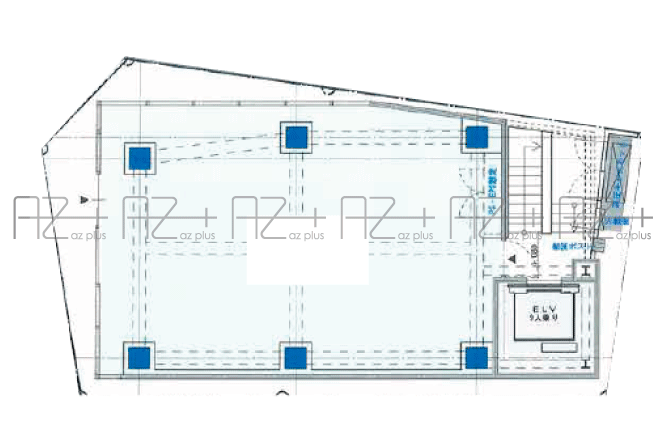
| k414 | 2F | 19.02坪 | 1,518,000円 | 閲覧 | |
| k415 | 3F | 18.78坪 | 1,012,000円 | 閲覧 | |
| k416 | 4F | 18.88坪 | 975,700円 | 閲覧 | |
| k417 | 6F | 17.89坪 | 979,000円 | 閲覧 | |
| k418 | 8F+屋上 | 35.58坪 | 1,892,000円 | 閲覧 |








渋谷駅徒歩7分、公園通りの角地に建築中の新築店舗ビル...








渋谷駅徒歩7分、公園通りの角地に建築中の新築店舗ビル...








渋谷駅徒歩7分、公園通りの角地に建築中の新築店舗ビル...








渋谷駅徒歩7分、公園通りの角地に建築中の新築店舗ビル...








渋谷駅徒歩7分、公園通りの角地に建築中の新築店舗ビル...
※図面と写真が現況と異なる場合は、現況を優先とします。