
- 渋谷区神宮前1-8-17
- 44.29坪 2F
- 月額賃料:2,035,000円
原宿エリアの貸店舗のご紹介。新築テナントビルの2階ワ...
※図面と写真が現況と異なる場合は、現況を優先とします。
| 物件No. | k427 |
|---|---|
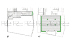
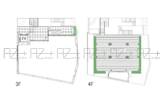
| 物件名称 | Vista神宮前 3-4F |
| 所在地 | 渋谷区神宮前1-8-17 |
| 最寄駅 | ■東京メトロ千代田線・副都心線 「明治神宮前」駅徒歩3分 ■JR山手線 「原宿」駅徒歩5分 ■東京メトロ銀座線・千代田線・半蔵門線 「表参道」駅徒歩10分 |
| 面積 | 135.87㎡(41.10坪) |
| 月額賃料 | 税込2,178,000円(坪単価@約52,992円) 税別1,980,000円(坪単価@約48,175円) |
| 所在階 | 3-4F |
| 敷金 | 相談 |
| 契約期間 | 定期借家契約5年 |
| 入居時期 | 即日入居可 |
| 火災保険料 | 要加入 |
|---|---|
| 保証会社 | 要加入 |
| 構造・規模 | 鉄筋コンクリート造4階建 |
| 設備 | ■エレベーター ■個別空調 |
| 竣工 | 2025年7月 |
| 備考 | ■貸室面積⇒3階:127.23㎡(38.49坪)、4階:8.64㎡(2.61坪) ■専用バルコニー付:83.79㎡(25.34坪) |
| 取引様態 | 媒介 |
| 仲介手数料 | 賃料の1ヶ月分(別途消費税) |
| 更新日 | 2026-04-27 |
原宿エリアの貸店舗のご紹介。
新築テナントビルの3階+4階とルーフバルコニー(25.34坪)
2面道路に接しておりアプローチも◎
竹下通りから少し入った立地で貸店舗をお探しなら!
| 物件No | 階数 | 面積 | 賃料(税込) | 業種 | 詳細 |
|---|---|---|---|---|---|
| k425 | 1F | 46.80坪 | 4,180,000円 | 閲覧 | |
| k426 | 2F | 44.29坪 | 2,035,000円 | 閲覧 |







原宿エリアの貸店舗のご紹介。新築テナントビルの2階ワ...







原宿エリアの貸店舗のご紹介。竹下通りから少し入った立...






下北沢駅徒歩3分、古着屋をはじめ多くの店舗が立ち並び...








渋谷駅徒歩7分、公園通りの角地に建築中の新築店舗ビル...








表参道駅徒歩4分青山通り付近の物件のご紹介です。全面...
※図面と写真が現況と異なる場合は、現況を優先とします。