
- 目黒区緑が丘3-1-9
- 8.68坪 2F
- 月額賃料:231,000円
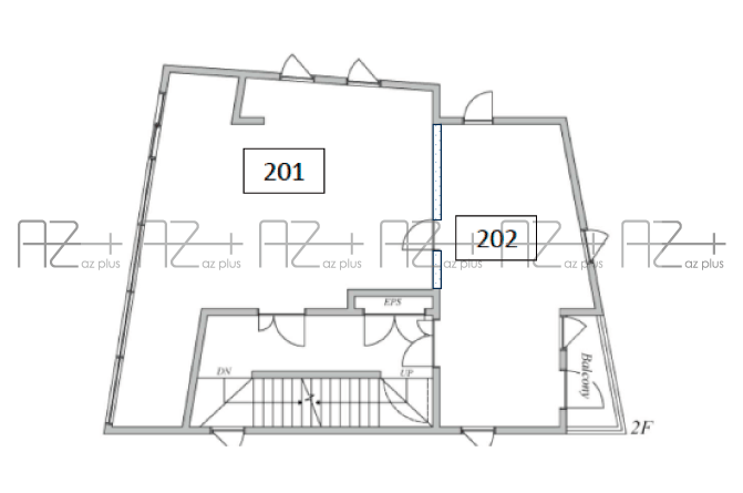
緑が丘駅徒歩1分、新築テナントビルの2階。区画は奥の...
※図面と写真が現況と異なる場合は、現況を優先とします。
| 物件No. | k442 |
|---|---|
| 物件名称 | プラスキューブ緑が丘 2F-201号室 |
| 所在地 | 目黒区緑が丘3-1-9 |
| 最寄駅 | ■東急大井町線 「緑が丘」駅徒歩1分 |
| 面積 | 50.80㎡(15.37坪) |
| 月額賃料 | 税込480,700円(坪単価@約31,275円) 税別437,000円(坪単価@約28,432円) |
| 月額共益費 | 税込55,000円(坪単価@約3,578円) 税別50,000円(坪単価@約3,253円) |
| 月額賃料+共益費 | 税込535,700円 税別487,000円 |
| 所在階 | 2F201号室 |
| 保証金 | 2ヶ月 |
| 更新料 | 新賃料1ヶ月(消費税別途) |
| 契約期間 | 普通借家契約3年(期間応相談) |
|---|---|
| 入居時期 | 2026年5月 |
| 火災保険料 | 要加入:指定 |
| 保証会社 | 要加入:初回100% |
| 構造・規模 | 鉄筋コンクリート造 地下1階付2階建 |
| 竣工 | 2026年4月 |
| 備考 | ■現況渡し(スケルトン返し) ■風営法届け出業種、民泊NG ■看板設置:要相談 ■解約予告:6ヶ月 ※1年以内の解約の場合フリーレント期間分相当額の違約金あり ■フリーレント2ヶ月 ■重飲食可能 ■業種相談可能 |
| 取引様態 | 媒介 |
| 仲介手数料 | 賃料の1ヶ月分(別途消費税) |
| 更新日 | 2026-03-25 |
緑が丘駅徒歩1分!
新築テナントビルの2階!
サロンやクリニック、スクール等におススメです!
| 物件No | 階数 | 面積 | 賃料(税込) | 業種 | 詳細 |
|---|---|---|---|---|---|
| k439 | B1F | 21.90坪 | 566,500円 | 閲覧 | |
| k440 | 1F101号室 | 12.72坪 | 463,100円 | 閲覧 | |
| k441 | 1F102号室 | 8.68坪 | 258,500円 | 閲覧 | |
| k443 | 2F202号室 | 8.68坪 | 231,000円 | 閲覧 |









緑が丘駅徒歩1分、新築テナントビルの2階。区画は奥の...









緑が丘駅徒歩1分、新築テナントビルの1階!サロンやク...









緑が丘駅徒歩1分の新築テナントビルの1階。貸室は通り...









大井町線、緑が丘駅徒歩1分!新築のテナントビルの地下...









代々木公園駅、代々木八幡駅徒歩1分新築テナントビルの...
※図面と写真が現況と異なる場合は、現況を優先とします。