
- 渋谷区恵比寿西1丁目
- 51.49坪 B1-2F
- 月額賃料:2,208,921円
代官山駅徒歩1分、東口出てすぐのところにある建物の地...
※図面と写真が現況と異なる場合は、現況を優先とします。
| 物件No. | k469 |
|---|---|
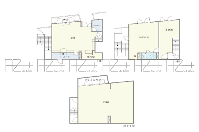
| 物件名称 | 代官山店舗・事務所ビル 1-2F |
| 所在地 | 渋谷区恵比寿西1丁目 |
| 最寄駅 | ■東急東横線 「代官山」駅 ■東急東横線、東京メトロ日比谷線 「中目黒」駅 ■JR各線、東京メトロ日比谷線 「恵比寿」駅 |
| 面積 | 108.66㎡(32.87坪) |
| 月額賃料 | 税込1,870,000円(坪単価@約56,890円) 税別1,700,000円(坪単価@約51,718円) |
| 所在階 | 1-2F |
| 敷金 | 10ヶ月分 |
| 礼金 | 1ヶ月分 |
| 償却 | 2ヶ月分 |
| 契約期間 | 定期借家契約5年 |
| 入居時期 | 2026年8月1日(予定) |
|---|---|
| 火災保険料 | 要加入 |
| 保証会社 | 要加入 |
| 構造・規模 | 鉄筋コンクリート造 地下1階付3階建 |
| 設備 | ■電気・水道・ガス ■個別空調 |
| 現況 | 入居中 |
| 竣工 | 1995年7月 |
| 備考 | ■居抜き相談(スケルトン返し) ■1階~2階 内階段あり |
| 取引様態 | 媒介 |
| 仲介手数料 | 賃料の1ヶ月分(別途消費税) |
| 更新日 | 2026-04-27 |
代官山駅徒歩1分、東口出てすぐのところにある建物の1階2階のメゾネット。
内階段と外階段があります。
現状、物販店。引き渡し状態についてはご相談ください。
他のフロアも募集中です。
詳しくはAZplusまでお問い合わせください。
| 物件No | 階数 | 面積 | 賃料(税込) | 業種 | 詳細 |
|---|---|---|---|---|---|
| k468 | B1F | 17.97坪 | 550,000円 | 閲覧 | |
| k470 | B1-2F | 51.49坪 | 2,208,921円 | 閲覧 |







代官山駅徒歩1分、東口出てすぐのところにある建物の地...







代官山駅徒歩1分、東口出てすぐのところにある建物の地...









恵比寿駅徒歩3分、恵比寿南三丁目交差点から細い通りに...






恵比寿エリアの一棟貸物件のご紹介。キレイな室内でオフ...








恵比寿駅徒歩5分一棟貸しの隠れ家物件のご紹介です。駅...
※図面と写真が現況と異なる場合は、現況を優先とします。