
まい泉通り沿い!角地! ガラス張り!2階貸店舗
- ラグラシア表参道 2F
- 渋谷区神宮前3-3-8
表参道駅徒歩6分まい泉通り沿いの物件のご紹介です。ガラス張りの築浅物件!角地で視認性◎2階部分の募集です。業種はご相談ください。表参道エリアで物件をお探しの方はお問い合わせください。
| 物件No | 階数 | 面積 | 賃料(税込) | 業種 | 別フロア |
|---|---|---|---|---|---|
| k147 | 2F | 56.70坪 | 要相談 | なし |
こんにちは♪ AZplusスタッフです。
今回は、表参道エリアにある店舗・事務所のご紹介です。

【所在地】
渋谷区神宮前3
【アクセス】
■東京メトロ銀座線・千代田線・半蔵門線
「表参道」駅徒歩6分
【面積】
187.45㎡(56.70坪)


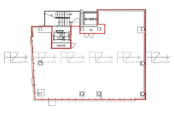
平面図

表参道駅徒歩6分
まい泉通り沿いの物件のご紹介です。
ガラス張りの築浅物件!
角地で視認性◎2階部分の募集です。
業種はご相談ください。
表参道エリアで物件をお探しの方はお問い合わせください。
———————————————————-
AZplus(アズプラス)はこだわりの店舗物件情報を掲載中です!
AZplus運営会社:株式会社アドバンス・シティ・プランニング
お問合せフォームはこちら↓
https://azplus.jp/request/
お電話でのお問合せはこちら↓
TEL :03-5413-8778
店舗物件や不動産に関するご質問でもお気軽にご連絡下さい。
AZplusスタッフ
Category:物件紹介 , 【店舗物件】六本木・西麻布
こんにちは♪ AZplusスタッフです。 今回は、六本木エリアにある店舗・事務所のご紹介です。 FUSION Roppongi Terrace B1F 【所在地】 港区六本木7 【アクセス】 ■東京メトロ日比…
Category:物件紹介 , 【店舗物件】恵比寿・代官山エリア
こんにちは♪ AZplusスタッフです。 今回は、代官山エリアにある店舗・事務所のご紹介です。 代官山店舗・事務所ビル B1F 【所在地】 渋谷区恵比寿西1 【アクセス】 ■東急東横線 「代官山」駅 ■東急東…
Category:物件紹介 , 【店舗物件】恵比寿・代官山エリア
こんにちは♪ AZplusスタッフです。 今回は、恵比寿エリアにある店舗・事務所のご紹介です。 コルティス恵比寿 2F 【所在地】 渋谷区恵比寿西1 【アクセス】 ■JR各線、東京メトロ日比谷線 「恵比寿」駅…