
- 渋谷区神宮前5-49-9
- 25.80坪 1F
- 月額賃料:2,554,200円
表参道駅徒歩4分青山通り付近の物件のご紹介です。全面...
※図面と写真が現況と異なる場合は、現況を優先とします。
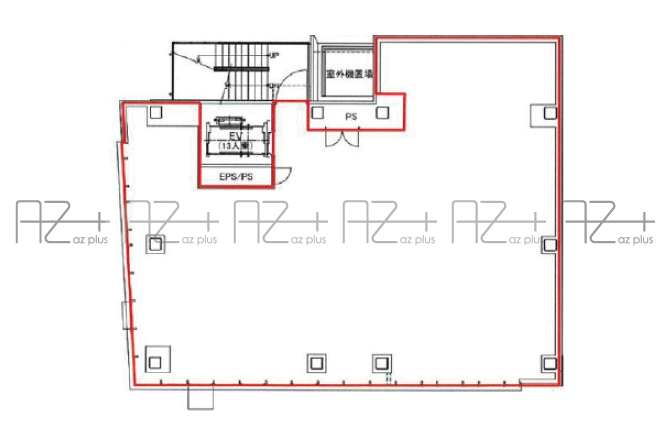
| 物件No. | k147 |
|---|---|
| 物件名称 | ラグラシア表参道 2F |
| 所在地 | 渋谷区神宮前3-3-8 |
| 最寄駅 | ■東京メトロ銀座線・千代田線・半蔵門線 「表参道」駅徒歩6分 |
| 面積 | 187.45㎡(56.70坪) |
| 月額賃料 | 税込要相談 税別要相談 |
| 所在階 | 2F |
| 敷金 | 6ヶ月 |
| 契約期間 | 定期借家契約5年 |
| 入居時期 | 相談 |
| 保証会社 | 要加入:レスト・ソリューション |
|---|---|
| 天井高 | 3.82m |
| 構造・規模 | 鉄骨鉄筋コンクリート造 地下1階付4階建 |
| 設備 | ■電灯:150A ■電力:200A ■給水管:25A ■排水管:100A ■インターネット利用可能 |
| 竣工 | 2019年1月竣工 |
| 備考 | ■引渡状態:スケルトン ■フリーレント3ヶ月迄相談可能 |
| 取引様態 | 媒介 |
| 仲介手数料 | 賃料の1ヶ月分(別途消費税) |
| 更新日 | 2025-10-22 |
表参道駅徒歩6分
まい泉通り沿いの物件のご紹介です。
ガラス張りの築浅物件!
角地で視認性◎2階部分の募集です。
業種はご相談ください。
表参道エリアで物件をお探しの方はお問い合わせください。








表参道駅徒歩4分青山通り付近の物件のご紹介です。全面...








神南エリアの新築貸店舗のご紹介。新築テナントビルの9...








渋谷駅徒歩7分、公園通りの角地に建築中の新築店舗ビル...









神南エリアの新築テナントビルのご紹介。2階のワンフロ...







表参道駅徒歩4分青山通り付近の物件のご紹介です。全面...
※図面と写真が現況と異なる場合は、現況を優先とします。