Category:物件紹介 , 【店舗物件】世田谷エリア
【店舗・事務所紹介】下北沢駅より徒歩3分! 地下1階貸店舗!飲食可
こんにちは♪ AZplusスタッフです。 今回は、下北沢エリアにある店舗・事務所のご紹介です。 環境ビル B1F 【所在地】 世田谷区北沢2 【アクセス】 ■小田急小田原線、京王井の頭線 「下北沢」駅徒歩3分…
こんにちは♪ AZplusスタッフです。
今回は、渋谷エリアにある店舗のご紹介です。

【所在地】
渋谷区宇田川町23
【アクセス】
■JR各線、東京メトロ銀座線・半蔵門線・副都心線、東急東横線・田園都市線、京王井の頭線
「渋谷」駅徒歩1分
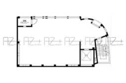
【面積】
74.68㎡(22.59坪)


平面図

渋谷駅徒歩1分
渋谷センター街入ってすぐの物件のご紹介です。
人通りが多く角地で視認性も◎
飲食可能!24時間営業も条件付きで可!
その他業種もご相談ください。
渋谷エリアで物件をお探しの方はお問い合わせください。
———————————————————-
AZplus(アズプラス)はこだわりの店舗物件情報を掲載中です!
AZplus運営会社:株式会社アドバンス・シティ・プランニング
お問合せフォームはこちら↓
https://azplus.jp/request/
お電話でのお問合せはこちら↓
TEL :03-5413-8778
店舗物件や不動産に関するご質問でもお気軽にご連絡下さい。
AZplusスタッフ
Category:物件紹介 , 【店舗物件】世田谷エリア
こんにちは♪ AZplusスタッフです。 今回は、下北沢エリアにある店舗・事務所のご紹介です。 環境ビル B1F 【所在地】 世田谷区北沢2 【アクセス】 ■小田急小田原線、京王井の頭線 「下北沢」駅徒歩3分…
Category:物件紹介 , 【店舗物件】自由が丘エリア
こんにちは♪ AZplusスタッフです。 今回は、自由が丘エリアにある店舗のご紹介です。 dot.jiyugaoka 1F-1区画 【所在地】 目黒区自由が丘2 【アクセス】 ■東急東横線・大井町線 「自由が…
Category:物件紹介 , 【店舗物件】世田谷エリア
こんにちは♪ AZplusスタッフです。 今回は、下北沢エリアにある店舗・事務所のご紹介です。 モモキタ 2F 【所在地】 世田谷区北沢2 【アクセス】 ■京王井の頭線、小田急小田原線 「下北沢」駅徒歩3分 …