
麻布十番の貸事務所 オシャレな内装が魅力
- NS麻布十番ビル 12F
- 港区麻布十番3-6-2
麻布十番のデザイナーズオフィス物件のご紹介。シンプルでオシャレな内装が魅力。サービス店舗ご相談可能!
| 物件No | 階数 | 面積 | 賃料(税込) | 業種 | 別フロア |
|---|---|---|---|---|---|
| k163 | 12F | 35.01坪 | 847,242円 | あり |
こんにちは♪ AZplusスタッフです。
今回は、麻布十番エリアにある店舗・事務所のご紹介です。

【所在地】
港区麻布十番3
【アクセス】
■東京メトロ南北線、都営大江戸線
「麻布十番」駅徒歩5分
■都営大江戸線
「赤羽橋」駅徒歩6分
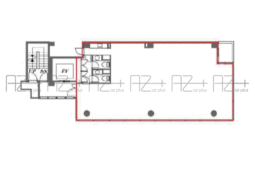
【面積】
115.75㎡(35.01坪)


平面図

麻布十番のデザイナーズオフィス物件のご紹介。
シンプルでオシャレな内装が魅力。
サービス店舗ご相談可能!
———————————————————-
AZplus(アズプラス)はこだわりの店舗物件情報を掲載中です!
AZplus運営会社:株式会社アドバンス・シティ・プランニング
お問合せフォームはこちら↓
https://azplus.jp/request/
お電話でのお問合せはこちら↓
TEL :03-5413-8778
店舗物件や不動産に関するご質問でもお気軽にご連絡下さい。
AZplusスタッフ
Category:物件紹介 , 【店舗物件】表参道・原宿・神宮前
こんにちは♪ AZplusスタッフです。 今回は、神宮前エリアにある店舗のご紹介です。 DOLCE 2-4F 【所在地】 渋谷区神宮前3 【アクセス】 ■JR山手線 「原宿」駅徒歩10分 ■東京メトロ千代田線…
Category:物件紹介
こんにちは♪ AZplusスタッフです。 今回は、奥渋エリアにある店舗・事務所のご紹介です。 h+富ヶ谷 B1F 【所在地】 渋谷区富ヶ谷1 【アクセス】 ■東京メトロ千代田線 「代々木公園」駅徒歩4分 ■小…
Category:物件紹介 , 【店舗物件】表参道・青山・外苑前 , 【店舗物件】表参道・原宿・神宮前
こんにちは♪ AZplusスタッフです。 今回は、神宮前エリアにある店舗のご紹介です。 神宮前五丁目PJ 1F 【所在地】 渋谷区神宮前5 【アクセス】 ■東京メトロ千代田線・副都心線 「明治神宮前」駅徒歩6…