Category:物件紹介 , 【店舗物件】表参道・原宿・神宮前
【店舗紹介】神宮前のオシャレ物件 サロンや事務所に◎
こんにちは♪ AZplusスタッフです。 今回は、神宮前エリアにある店舗のご紹介です。 DOLCE 2-4F 【所在地】 渋谷区神宮前3 【アクセス】 ■JR山手線 「原宿」駅徒歩10分 ■東京メトロ千代田線…
こんにちは♪ AZplusスタッフです。
今回は、下北沢エリアにある店舗・事務所のご紹介です。

【所在地】
世田谷区北沢2
【アクセス】
■京王井の頭線、小田急小田原線
「下北沢」駅徒歩1分
【面積】
73.21㎡(22.14坪)

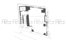
平面図

下北沢駅南西口から徒歩1分!
京王井の頭線からもアクセス可能。
南西口には飲食店やお洒落なカフェ、シェアラウンジがあり
ゆったりと過ごしたい方にオススメ。
少し入った場所に位置し、隠れ家要素有。
カフェやサービス店舗に最適!
内容により重飲食等もご相談。
人気の1フロア1テナント。
24時間営業可能。
下北沢エリアで物件をお探しの方、お問い合わせください!
———————————————————-
AZplus(アズプラス)はこだわりの店舗物件情報を掲載中です!
AZplus運営会社:株式会社アドバンス・シティ・プランニング
お問合せフォームはこちら↓
https://azplus.jp/request/
お電話でのお問合せはこちら↓
TEL :03-5413-8778
店舗物件や不動産に関するご質問でもお気軽にご連絡下さい。
AZplusスタッフ
Category:物件紹介 , 【店舗物件】表参道・原宿・神宮前
こんにちは♪ AZplusスタッフです。 今回は、神宮前エリアにある店舗のご紹介です。 DOLCE 2-4F 【所在地】 渋谷区神宮前3 【アクセス】 ■JR山手線 「原宿」駅徒歩10分 ■東京メトロ千代田線…
Category:物件紹介
こんにちは♪ AZplusスタッフです。 今回は、奥渋エリアにある店舗・事務所のご紹介です。 h+富ヶ谷 B1F 【所在地】 渋谷区富ヶ谷1 【アクセス】 ■東京メトロ千代田線 「代々木公園」駅徒歩4分 ■小…
Category:物件紹介 , 【店舗物件】表参道・青山・外苑前 , 【店舗物件】表参道・原宿・神宮前
こんにちは♪ AZplusスタッフです。 今回は、神宮前エリアにある店舗のご紹介です。 神宮前五丁目PJ 1F 【所在地】 渋谷区神宮前5 【アクセス】 ■東京メトロ千代田線・副都心線 「明治神宮前」駅徒歩6…